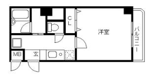
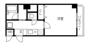
ザ・パークハウス広島駅前通り(603)(広島県広島市南区稲荷町)の建物情報
ザ・パークハウス広島駅前通り(603) 賃貸物件基本情報
このページの情報は広告情報ではありません。過去から現在までCHINTAIネットに掲載のあった物件情報を元に作成した参考ページです。
| 交通 |
山陽本線(中国)/広島駅
徒歩10分
広島市電2号線<広島電鉄>/稲荷町駅 徒歩2分 広島市電2号線<広島電鉄>/八丁堀駅 徒歩10分 |
|---|---|
| 駐車場 | 駐車場なし |
| 環境 |
--
※部屋・階数により設備が異なる場合がございます。 |
| 建物設備 |
オートロック
/
宅配ボックス
/
防犯カメラ
/
敷地内ごみ置き場
/
集合郵便受け
/
都市ガス
/
電気
/
公営上水道
/
下水道
/
駐輪場
※部屋・階数により設備が異なる場合がございます。 |
ザ・パークハウス広島駅前通り(603)周辺の空室物件
広島市南区周辺が得意な不動産店舗
株式会社エイブル広島駅前店
- オススメ
オススメポイント ★広島エイブルはお客様の希望に応えていきます★
- 交通
- 山陽本線(中国)/広島駅
- 所在地
- 広島県広島市南区猿猴橋町5-5グランディール猿猴橋1F
- 駐車場有
- 駅から徒歩3分以内
- 多店舗展開
- 開店10年以上
掲載物件数:
853
件
- 得意駅
- 広島駅 新白島駅 広島駅 広島駅 新白島駅 他
- 得意エリア
- 広島市南区 広島市東区 安芸郡府中町 広島市中区 広島市安芸区 他
082-506-0070
