アクタス薬院アネックスⅡ(福岡県福岡市中央区平尾1丁目)の建物情報
掲載中の賃貸物件は1件あります!
アクタス薬院アネックスⅡ 賃貸物件基本情報
| 交通 |
鹿児島本線/博多駅
徒歩32分
西鉄天神大牟田線/薬院駅 徒歩8分 福岡市営地下鉄七隈線/薬院駅 徒歩8分 西鉄天神大牟田線/西鉄平尾駅 徒歩10分 福岡市営地下鉄空港線/赤坂駅 徒歩24分 福岡市営地下鉄空港線/天神駅 徒歩22分 福岡市営地下鉄七隈線/薬院大通駅 徒歩11分 福岡市営地下鉄七隈線/渡辺通駅 徒歩14分 |
|---|---|
| 駐車場 | 駐車場なし |
| 環境 |
2沿線利用可
※部屋・階数により設備が異なる場合がございます。 |
| 建物設備 |
オートロック
/
防犯カメラ
/
敷地内ごみ置き場
/
都市ガス
/
電気
/
公営上水道
/
下水道
※部屋・階数により設備が異なる場合がございます。 |
アクタス薬院アネックスⅡ 賃貸物件の空室情報
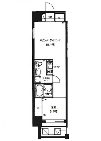
| 間取図 | 家賃 管理費等 |
敷金/保証金 礼金/償却 |
間取り 専有面積 |
方位物件 階層 |
詳細を見る お問い合わせする |
|---|---|---|---|---|---|
|
|
6.7万円 5,000円 |
なし/-- 1ヶ月/-- |
1DK 24.95㎡ |
北東 5階 |
アクタス薬院アネックスⅡ周辺の空室物件
アクタス薬院アネックスⅡ周辺が得意な不動産店舗
オススメポイント あなたの理想のお部屋をお探し致します。
- 交通
- 山手線/渋谷駅
- 所在地
- 東京都渋谷区桜丘町16-9 DK渋谷4階
- 駅から徒歩3分以内
- 保証人不要相談可
- 引越会社紹介
- ChintaiNet掲載店舗
掲載物件数:
8637
件
- 得意駅
- 得意エリア
- 渋谷区
03-6833-3971
