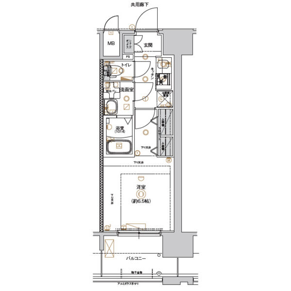
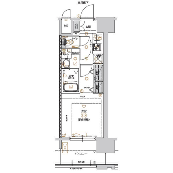
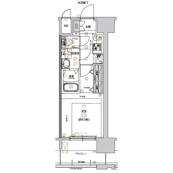
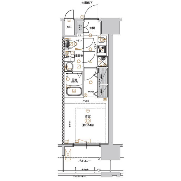
MS 上飯田(愛知県名古屋市北区上飯田北町2丁目)の建物情報
MS 上飯田 賃貸物件基本情報
このページの情報は広告情報ではありません。過去から現在までCHINTAIネットに掲載のあった物件情報を元に作成した参考ページです。
| 交通 |
中央本線<中央西線>/大曽根駅
徒歩23分
名古屋市営地下鉄名城線/大曽根駅 徒歩20分 名鉄小牧線/上飯田駅 徒歩6分 名古屋市営地下鉄上飯田線/上飯田駅 徒歩6分 名古屋市営地下鉄名城線/平安通駅 徒歩17分 名古屋市営地下鉄上飯田線/平安通駅 徒歩17分 名古屋市営地下鉄名城線/志賀本通駅 徒歩24分 |
|---|---|
| 駐車場 | 駐車場あり |
| 環境 |
3駅利用可
/
2沿線利用可
※部屋・階数により設備が異なる場合がございます。 |
| 建物設備 |
オートロック
/
宅配ボックス
/
管理人有り
/
LPガス
/
電気
/
公営上水道
/
下水道
※部屋・階数により設備が異なる場合がございます。 |
MS 上飯田周辺の空室物件
名古屋市北区周辺が得意な不動産店舗
株式会社エイブル大曽根店
- オススメ
- 動画
オススメポイント 明るく元気なスタッフが皆様をお出迎え致します。
- 交通
- 名古屋市営地下鉄名城線/大曽根駅
- 所在地
- 愛知県名古屋市北区大曽根3-14-5小川の荘1F
- 仲介手数料家賃の55%以下
- 駅から徒歩3分以内
- 女性スタッフ対応
- 多店舗展開
掲載物件数:
1473
件
- 得意駅
- 大曽根駅 平安通駅 ナゴヤドーム前矢田駅 大曽根駅 大曽根駅 他
- 得意エリア
- 名古屋市北区 名古屋市千種区 名古屋市東区 名古屋市西区 名古屋市守山区 他
052-981-3499
