ウエストラフィーネ(愛知県知多市岡田字向田)の建物情報
掲載中の賃貸物件は2件あります!
ウエストラフィーネ 賃貸物件基本情報
| 交通 |
名鉄常滑線・空港線/朝倉駅
徒歩43分
名鉄常滑線・空港線/古見駅 徒歩36分 名鉄常滑線・空港線/長浦駅 徒歩24分 |
|---|---|
| 駐車場 | 駐車場あり |
| 環境 |
2駅利用可
※部屋・階数により設備が異なる場合がございます。 |
| 建物設備 |
LPガス
/
電気
/
公営上水道
/
下水道
※部屋・階数により設備が異なる場合がございます。 |
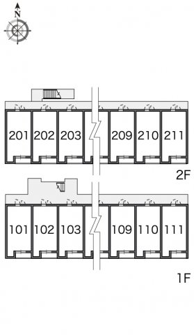
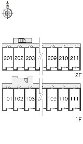
ウエストラフィーネ 賃貸物件の空室情報
| 間取図 | 家賃 管理費等 |
敷金/保証金 礼金/償却 |
間取り 専有面積 |
方位物件 階層 |
詳細を見る お問い合わせする |
|---|---|---|---|---|---|
|
|
5万円 3,000円 |
なし/-- なし/-- |
2DK 49.2㎡ |
南 1-2階 |
|
|
|
5万円 3,000円 |
なし/-- なし/-- |
2DK 49.2㎡ |
南 1階 |
