DENCITYオフィス棟(愛知県安城市末広町)の建物情報
掲載中の賃貸物件は5件あります!
DENCITYオフィス棟 賃貸物件基本情報
| 交通 |
東海道本線/安城駅
徒歩8分
名鉄西尾線/北安城駅 徒歩19分 名鉄西尾線/南安城駅 徒歩14分 |
|---|---|
| 駐車場 | 駐車場あり |
| 環境 |
--
※部屋・階数により設備が異なる場合がございます。 |
| 建物設備 |
エレベーター2基
/
都市ガス
/
電気
/
公営上水道
/
下水道
※部屋・階数により設備が異なる場合がございます。 |
DENCITYオフィス棟 賃貸物件の空室情報
| 間取図 | 家賃 管理費等 |
敷金/保証金 礼金/償却 |
間取り 専有面積 |
方位物件 階層 |
詳細を見る お問い合わせする |
|---|---|---|---|---|---|
|
|
12.1万円 -- |
--/8ヶ月 --/-- |
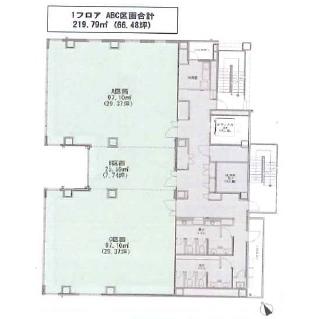
その他 25.59㎡ |
西 5階 |
|
|
|
45.98万円 -- |
--/8ヶ月 --/-- |
その他 97.1㎡ |
西 5階 |
|
|
|
45.98万円 -- |
--/8ヶ月 --/-- |
その他 97.1㎡ |
西 5階 |
|
|
|
47.85万円 -- |
--/8ヶ月 --/-- |
その他 97.1㎡ |
西 7階 |
|
|
|
57.97万円 -- |
--/8ヶ月 --/-- |
その他 25.59㎡ |
西 5階 |
DENCITYオフィス棟周辺の空室物件
DENCITYオフィス棟周辺が得意な不動産店舗
株式会社REAエイブルネットワーク安城店
- オススメ
オススメポイント オンライン対応可。おうちにいながらお部屋探し・申込できます♪
- 交通
- 東海道本線/三河安城駅
- 所在地
- 愛知県安城市三河安城町1-10-3
- 駐車場有
- 保証人不要相談可
- 駅から徒歩3分以内
- 社宅・寮対応物件あり
掲載物件数:
1015
件
- 得意駅
- 三河安城駅 安城駅 刈谷駅 東刈谷駅 野田新町駅 他
- 得意エリア
- 刈谷市 碧南市 岡崎市 高浜市 大府市 他
0566-91-7775
