K´s house(愛知県名古屋市名東区社口2丁目)の建物情報
掲載中の賃貸物件は1件あります!
K´s house 賃貸物件基本情報
| 交通 |
名古屋市営地下鉄東山線/一社駅
徒歩23分
名古屋市営地下鉄東山線/上社駅 徒歩15分 名古屋市営地下鉄東山線/本郷駅 徒歩23分 |
|---|---|
| 駐車場 | 駐車場なし |
| 環境 |
--
※部屋・階数により設備が異なる場合がございます。 |
| 建物設備 |
都市ガス
/
電気
/
公営上水道
/
下水道
※部屋・階数により設備が異なる場合がございます。 |
K´s house 賃貸物件の空室情報
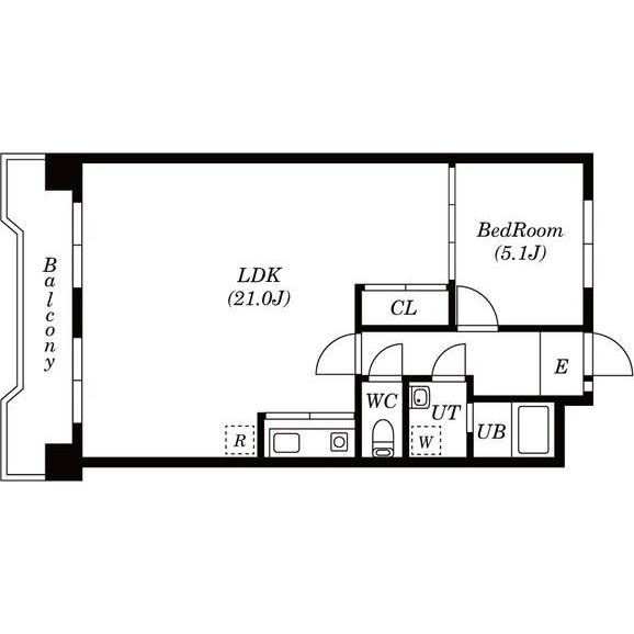
| 間取図 | 家賃 管理費等 |
敷金/保証金 礼金/償却 |
間取り 専有面積 |
方位物件 階層 |
詳細を見る お問い合わせする |
|---|---|---|---|---|---|
|
|
5.5万円 -- |
--/-- --/-- |
1K 31.98㎡ |
西 2階 |
K´s house周辺の空室物件
K´s house周辺が得意な不動産店舗
株式会社エイブル藤が丘店
- オススメ
オススメポイント 理想のお部屋探しをサポート致します!仲介手数料家賃の55%!
- 交通
- 名古屋市営地下鉄東山線/藤が丘駅
- 所在地
- 愛知県名古屋市名東区藤が丘141藤が丘駅前ビル2F
- 女性スタッフ対応
- 駅から徒歩3分以内
- 多店舗展開
- 年中無休
掲載物件数:
1060
件
- 得意駅
- 藤が丘駅 本郷駅 上社駅 はなみずき通駅 杁ケ池公園駅 他
- 得意エリア
- 名古屋市名東区 名古屋市守山区 瀬戸市 尾張旭市 日進市 他
052-775-1237
