エトワール社口C(愛知県名古屋市名東区社口2丁目)の建物情報
掲載中の賃貸物件は1件あります!
エトワール社口C 賃貸物件基本情報
| 交通 |
名古屋市営地下鉄東山線/一社駅
徒歩16分
名古屋市営地下鉄東山線/上社駅 徒歩12分 名古屋市営地下鉄東山線/本郷駅 徒歩19分 |
|---|---|
| 駐車場 | 駐車場あり |
| 環境 |
--
※部屋・階数により設備が異なる場合がございます。 |
| 建物設備 |
都市ガス
/
電気
/
公営上水道
/
下水道
/
駐車場1台無料
※部屋・階数により設備が異なる場合がございます。 |
エトワール社口C 賃貸物件の空室情報
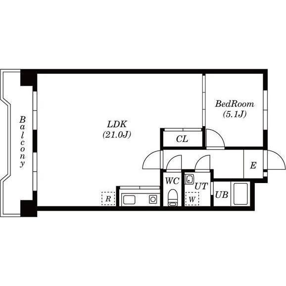
| 間取図 | 家賃 管理費等 |
敷金/保証金 礼金/償却 |
間取り 専有面積 |
方位物件 階層 |
詳細を見る お問い合わせする |
|---|---|---|---|---|---|
|
|
16万円 -- |
32万/-- --/-- |
3LDK 82.82㎡ |
南東 1-2階 |
エトワール社口C周辺の空室物件
エトワール社口C周辺が得意な不動産店舗
株式会社エイブル星ヶ丘店
- オススメ
オススメポイント 新生活のスタート!お客様ファーストで全力サポートいたします!
- 交通
- 名古屋市営地下鉄東山線/星ヶ丘駅
- 所在地
- 愛知県名古屋市千種区井上町74-2鈴幸西ビル1F
- 仲介手数料家賃の55%以下
- 駅から徒歩3分以内
- 多店舗展開
- 年中無休
掲載物件数:
1200
件
- 得意駅
- 星ヶ丘駅 一社駅 上社駅 本郷駅 東山公園駅 他
- 得意エリア
- 名古屋市千種区 名古屋市名東区 日進市 名古屋市東区 名古屋市中区 他
052-782-2511
