アークティカ上飯田(愛知県名古屋市北区上飯田東町5丁目)の建物情報
掲載中の賃貸物件は4件あります!
アークティカ上飯田 賃貸物件基本情報
| 交通 |
中央本線<中央西線>/大曽根駅
徒歩20分
名古屋市営地下鉄名城線/大曽根駅 徒歩20分 中央本線<中央西線>/新守山駅 徒歩30分 名鉄小牧線/上飯田駅 徒歩9分 名古屋市営地下鉄上飯田線/上飯田駅 徒歩9分 名古屋市営地下鉄名城線/平安通駅 徒歩22分 名古屋市営地下鉄上飯田線/平安通駅 徒歩22分 |
|---|---|
| 駐車場 | 駐車場あり |
| 環境 |
3駅利用可
/
3沿線駅利用可
※部屋・階数により設備が異なる場合がございます。 |
| 建物設備 |
管理人有り
/
敷地内ごみ置き場
/
LPガス
/
電気
/
下水道
※部屋・階数により設備が異なる場合がございます。 |
アークティカ上飯田 賃貸物件の空室情報
| 間取図 | 家賃 管理費等 |
敷金/保証金 礼金/償却 |
間取り 専有面積 |
方位物件 階層 |
詳細を見る お問い合わせする |
|---|---|---|---|---|---|
|
|
6.5万円 4,000円 |
なし/-- なし/-- |
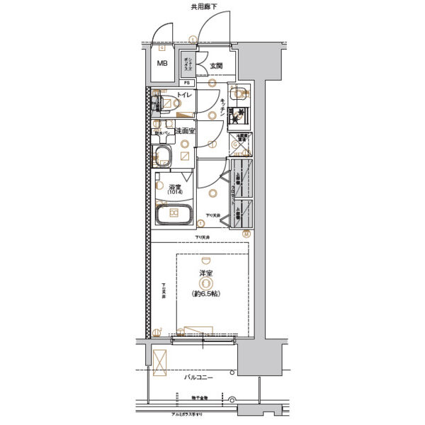
1LDK 32.4㎡ |
南 1階 |
|
|
|
6.5万円 4,000円 |
--/-- --/-- |
1LDK 32.4㎡ |
南 1階 |
|
|
|
6.5万円 4,000円 |
--/-- --/-- |
1LDK 32.4㎡ |
南 2階 |
|
|
|
6.5万円 4,000円 |
--/-- --/-- |
1LDK 32.4㎡ |
南 2階 |
アークティカ上飯田周辺の空室物件
アークティカ上飯田周辺が得意な不動産店舗
株式会社エイブル黒川店
- オススメ
オススメポイント 名古屋の北の玄関口! お部屋探しはエイブル黒川店へ
- 交通
- 名古屋市営地下鉄名城線/黒川駅
- 所在地
- 愛知県名古屋市北区田幡2-12-5丸昌ビル1F
- 駐車場有
- 保証人不要相談可
- 仲介手数料家賃の55%以下
- 駅から徒歩3分以内
掲載物件数:
1441
件
- 得意駅
- 名城公園駅 黒川駅 志賀本通駅 平安通駅 上飯田駅 他
- 得意エリア
- 名古屋市北区 名古屋市東区 名古屋市西区 春日井市 西春日井郡豊山町 他
052-916-9155
