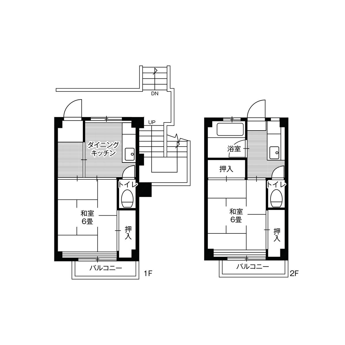
ナチュラル ハーベスト(愛知県高浜市湯山町4丁目)の建物情報
ナチュラル ハーベスト 賃貸物件基本情報
このページの情報は広告情報ではありません。過去から現在までCHINTAIネットに掲載のあった物件情報を元に作成した参考ページです。
| 交通 |
名鉄三河線/高浜港駅
徒歩27分
名鉄三河線/三河高浜駅 徒歩13分 名鉄三河線/吉浜駅 徒歩25分 |
|---|---|
| 駐車場 | 駐車場あり |
| 環境 |
--
※部屋・階数により設備が異なる場合がございます。 |
| 建物設備 |
都市ガス
/
駐輪場
/
平面駐車場
※部屋・階数により設備が異なる場合がございます。 |
ナチュラル ハーベスト周辺の空室物件
高浜市周辺が得意な不動産店舗
オススメポイント あなたの高浜市・碧南市での新生活を応援します!
- 交通
- 名鉄三河線/三河高浜駅
- 所在地
- 愛知県高浜市青木町5-1-1
- 多店舗展開
- 駅まで車で送迎可
- 駐車場有
- 引越会社紹介
掲載物件数:
192
件
- 得意駅
- 三河高浜駅 高浜港駅 北新川駅 碧南中央駅
- 得意エリア
- 高浜市 碧南市 刈谷市 安城市
0566-91-1330
