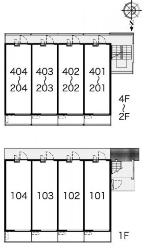
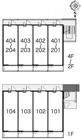
ライオンズマンション旭ヶ丘(愛知県名古屋市東区矢田南1丁目)の建物情報
ライオンズマンション旭ヶ丘 賃貸物件基本情報
このページの情報は広告情報ではありません。過去から現在までCHINTAIネットに掲載のあった物件情報を元に作成した参考ページです。
| 交通 |
中央本線<中央西線>/大曽根駅
徒歩13分
名鉄瀬戸線/大曽根駅 徒歩12分 名古屋市営地下鉄名城線/大曽根駅 徒歩13分 名鉄瀬戸線/森下駅 徒歩15分 名古屋市営地下鉄名城線/ナゴヤドーム前矢田駅 徒歩15分 |
|---|---|
| 駐車場 | 駐車場なし |
| 環境 |
--
※部屋・階数により設備が異なる場合がございます。 |
| 建物設備 |
都市ガス
/
公営上水道
/
下水道
※部屋・階数により設備が異なる場合がございます。 |
ライオンズマンション旭ヶ丘周辺の空室物件
名古屋市東区周辺が得意な不動産店舗
- 交通
- 名古屋市営地下鉄名城線/久屋大通駅
- 所在地
- 愛知県名古屋市東区東桜1-10-36第44オーシャンビル2階
掲載物件数:
1409
件
052-951-0231
