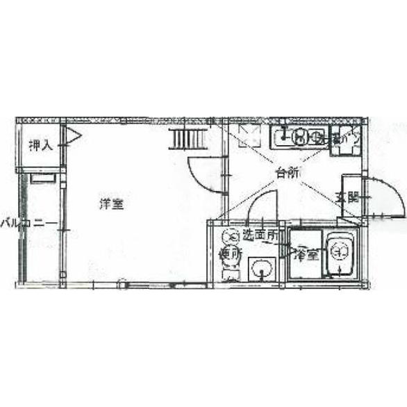
川西1丁目アパートメント(2階:4.8万~5.1万)モデルル(愛知県名古屋市守山区川西1丁目)の建物情報
川西1丁目アパートメント(2階:4.8万~5.1万)モデルル 賃貸物件基本情報
このページの情報は広告情報ではありません。過去から現在までCHINTAIネットに掲載のあった物件情報を元に作成した参考ページです。
| 交通 |
名古屋市営地下鉄上飯田線/上飯田駅
徒歩10分
名鉄小牧線/味鋺駅 徒歩20分 名古屋市営地下鉄名城線/平安通駅 徒歩22分 |
|---|---|
| 駐車場 | 駐車場あり |
| 環境 |
--
※部屋・階数により設備が異なる場合がございます。 |
| 建物設備 |
LPガス
/
電気
/
公営上水道
/
下水道
※部屋・階数により設備が異なる場合がございます。 |
川西1丁目アパートメント(2階:4.8万~5.1万)モデルル周辺の空室物件
名古屋市守山区周辺が得意な不動産店舗
株式会社エイブル小幡店
- オススメ
オススメポイント 経験豊富な元気で明るいスタッフが揃ったお店になります。
- 交通
- 名鉄瀬戸線/小幡駅
- 所在地
- 愛知県名古屋市守山区中新10-10第2大島ビル1F
- 駅まで車で送迎可
- 駐車場有
- 仲介手数料家賃の55%以下
- 多店舗展開
掲載物件数:
1045
件
- 得意駅
- 小幡駅 喜多山駅 瓢箪山駅 守山自衛隊前駅 大森・金城学院前駅 他
- 得意エリア
- 名古屋市守山区 名古屋市北区 尾張旭市 名古屋市東区 名古屋市名東区 他
052-796-3006
