コーポいのくて(愛知県長久手市熊田)の建物情報
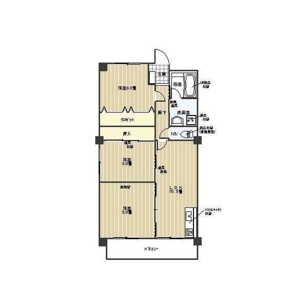
コーポいのくて 賃貸物件基本情報
このページの情報は広告情報ではありません。過去から現在までCHINTAIネットに掲載のあった物件情報を元に作成した参考ページです。
| 交通 |
名古屋市営地下鉄東山線/本郷駅
徒歩16分
愛知高速交通東部丘陵線<リニモ>/藤が丘駅 徒歩15分 名古屋市営地下鉄東山線/藤が丘駅 徒歩15分 愛知高速交通東部丘陵線<リニモ>/はなみずき通駅 徒歩16分 愛知高速交通東部丘陵線<リニモ>/杁ケ池公園駅 徒歩17分 |
|---|---|
| 駐車場 | 駐車場あり |
| 環境 |
--
※部屋・階数により設備が異なる場合がございます。 |
| 建物設備 |
防犯カメラ
/
敷地内ごみ置き場
/
集合郵便受け
/
都市ガス
/
電気
/
公営上水道
/
浄水槽
/
駐輪場
※部屋・階数により設備が異なる場合がございます。 |
コーポいのくて周辺の空室物件
長久手市周辺が得意な不動産店舗
- 交通
- 愛知高速交通東部丘陵線<リニモ>/長久手古戦場駅
- 所在地
- 愛知県長久手市勝入塚206
掲載物件数:
825
件
0561-42-6666
