山田ハイツ(愛知県名古屋市瑞穂区松月町)の建物情報
掲載中の賃貸物件は4件あります!
山田ハイツ 賃貸物件基本情報
| 交通 |
名古屋市営地下鉄鶴舞線/川名駅
徒歩22分
名古屋市営地下鉄桜通線/桜山駅 徒歩18分 名古屋市営地下鉄桜通線/瑞穂区役所駅 徒歩14分 名古屋市営地下鉄名城線/総合リハビリセンター駅 徒歩17分 |
|---|---|
| 駐車場 | 駐車場なし |
| 環境 |
--
※部屋・階数により設備が異なる場合がございます。 |
| 建物設備 |
集合郵便受け
/
都市ガス
/
電気
/
公営上水道
/
下水道
/
駐輪場
※部屋・階数により設備が異なる場合がございます。 |
山田ハイツ 賃貸物件の空室情報
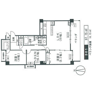
| 間取図 | 家賃 管理費等 |
敷金/保証金 礼金/償却 |
間取り 専有面積 |
方位物件 階層 |
詳細を見る お問い合わせする |
|---|---|---|---|---|---|
|
|
5.6万円 4,000円 |
11.2万/-- --/5.6万円 |
3DK 51㎡ |
南 2階 |
|
|
|
5.6万円 4,000円 |
11.2万/-- --/5.6万円 |
3DK 51㎡ |
南 2階 |
|
|
|
6万円 4,000円 |
12万/-- --/6万円 |
2LDK 51㎡ |
南 3階 |
|
|
|
6万円 4,000円 |
12万/-- --/6万円 |
2LDK 51㎡ |
南 3階 |
山田ハイツ周辺の空室物件
山田ハイツ周辺が得意な不動産店舗
株式会社エイブル御器所店
- オススメ
オススメポイント ☆新生活スタートを元気なスタッフがお手伝いさせて頂きます☆
- 交通
- 名古屋市営地下鉄鶴舞線/御器所駅
- 所在地
- 愛知県名古屋市昭和区御器所通3-9エスタシオン御器所1F
- 駐車場有
- 引越会社紹介
- 仲介手数料家賃の55%以下
- 駅から徒歩3分以内
掲載物件数:
1240
件
- 得意駅
- 御器所駅 桜山駅 荒畑駅 川名駅 吹上駅 他
- 得意エリア
- 名古屋市昭和区 名古屋市千種区 名古屋市瑞穂区 名古屋市東区 名古屋市中区 他
052-741-9011
