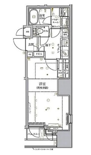
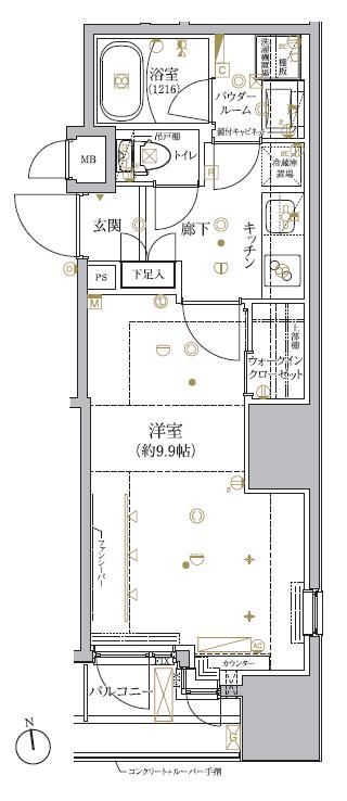
HARVEY神田司町(東京都千代田区神田司町2丁目)の建物情報
HARVEY神田司町 賃貸物件基本情報
このページの情報は広告情報ではありません。過去から現在までCHINTAIネットに掲載のあった物件情報を元に作成した参考ページです。
| 交通 |
銀座線/神田駅
徒歩7分
中央線/御茶ノ水駅 徒歩11分 つくばエクスプレス/秋葉原駅 徒歩12分 丸ノ内線/淡路町駅 徒歩2分 |
|---|---|
| 駐車場 | 駐車場なし |
| 環境 |
3駅利用可
/
3沿線駅利用可
/
閑静な住宅地
※部屋・階数により設備が異なる場合がございます。 |
| 建物設備 |
オートロック
/
都市ガス
※部屋・階数により設備が異なる場合がございます。 |
HARVEY神田司町周辺の空室物件
千代田区周辺が得意な不動産店舗
- 交通
- 中央線/神田駅
- 所在地
- 東京都千代田区内神田3丁目21-8 神田駅北口合同ビル503号
掲載物件数:
302
件
03-6811-6897
