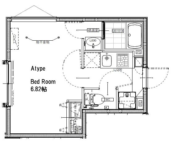
ハーモニーテラス上井草IV(東京都杉並区上井草2丁目)の建物情報
ハーモニーテラス上井草IV 賃貸物件基本情報
このページの情報は広告情報ではありません。過去から現在までCHINTAIネットに掲載のあった物件情報を元に作成した参考ページです。
| 交通 |
西武新宿線/下井草駅
徒歩24分
西武新宿線/井荻駅 徒歩15分 西武新宿線/上井草駅 徒歩10分 西武新宿線/上石神井駅 徒歩26分 |
|---|---|
| 駐車場 | 駐車場なし |
| 環境 |
--
※部屋・階数により設備が異なる場合がございます。 |
| 建物設備 |
敷地内ごみ置き場
/
LPガス
/
駐輪場
※部屋・階数により設備が異なる場合がございます。 |
ハーモニーテラス上井草IV周辺の空室物件
杉並区周辺が得意な不動産店舗
株式会社エイブル高円寺店
- オススメ
オススメポイント 【お客様へ安心安全なお部屋探し環境の提供を第一に営業中です】
- 交通
- 中央線/高円寺駅
- 所在地
- 東京都杉並区高円寺北2-8-1内田ビル4F
- 多店舗展開
- 仲介手数料家賃の55%以下
- 駅から徒歩3分以内
- 年中無休
掲載物件数:
185
件
- 得意駅
- 高円寺駅 新高円寺駅 阿佐ケ谷駅 野方駅 東高円寺駅 他
- 得意エリア
- 杉並区 中野区 新宿区 渋谷区 練馬区 他
03-3223-0826
