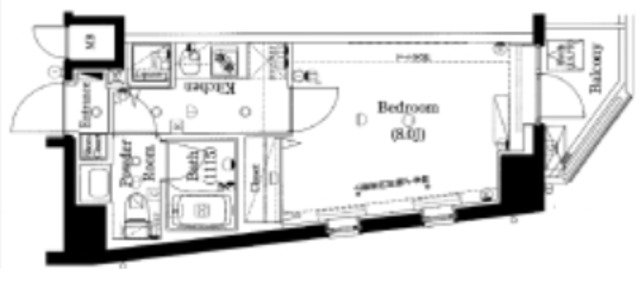
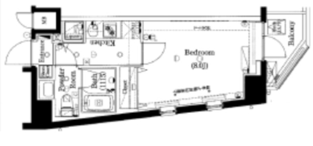
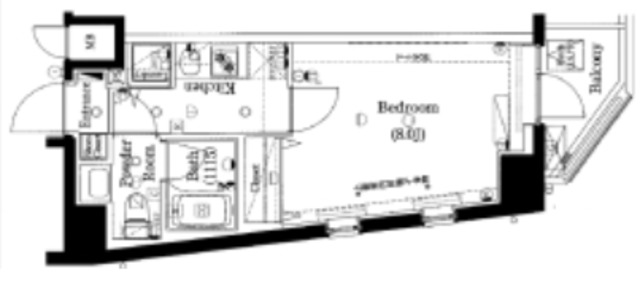
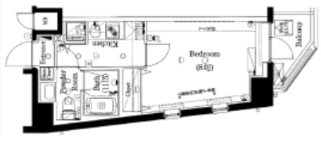
プレセダンヒルズ⽩⾦高輪(東京都港区白金3丁目)の建物情報
プレセダンヒルズ⽩⾦高輪 賃貸物件基本情報
このページの情報は広告情報ではありません。過去から現在までCHINTAIネットに掲載のあった物件情報を元に作成した参考ページです。
| 交通 |
日比谷線/広尾駅
徒歩17分
都営三田線/白金高輪駅 徒歩10分 南北線/白金高輪駅 徒歩10分 |
|---|---|
| 駐車場 | 駐車場なし |
| 環境 |
3駅利用可
/
3沿線駅利用可
/
閑静な住宅地
※部屋・階数により設備が異なる場合がございます。 |
| 建物設備 |
オートロック
/
宅配ボックス
/
防犯カメラ
/
エレベーター
/
24時間ゴミ出し可
/
敷地内ごみ置き場
/
都市ガス
/
電気
/
公営上水道
/
下水道
/
駐輪場
※部屋・階数により設備が異なる場合がございます。 |
プレセダンヒルズ⽩⾦高輪周辺の空室物件
港区周辺が得意な不動産店舗
株式会社エイブル田町三田通り店
- オススメ
オススメポイント 港区を中心に首都圏のお部屋探し♪テナントのご相談もぜひ♪
- 交通
- 山手線/田町駅
- 所在地
- 東京都港区三田2-11-15三田川崎ビル1F
- 駅まで車で送迎可
- 英語対応可
- 多店舗展開
- 開店10年以上
掲載物件数:
516
件
- 得意駅
- 田町駅 品川駅 浜松町駅 新橋駅 三田駅 他
- 得意エリア
- 港区 中央区 江東区 品川区 目黒区 他
03-3798-8280
