ハウス岩本町(HOUSE岩本町)(東京都千代田区岩本町1丁目)の建物情報
掲載中の賃貸物件は1件あります!
ハウス岩本町(HOUSE岩本町) 賃貸物件基本情報
| 交通 |
総武線/新日本橋駅
徒歩7分
総武線/馬喰町駅 徒歩4分 日比谷線/小伝馬町駅 徒歩6分 都営新宿線/馬喰横山駅 徒歩6分 |
|---|---|
| 駐車場 | 駐車場なし |
| 環境 |
--
※部屋・階数により設備が異なる場合がございます。 |
| 建物設備 |
オートロック
/
宅配ボックス
/
防犯カメラ
/
エレベーター1基
/
敷地内ごみ置き場
/
都市ガス
/
公営上水道
/
駐輪場
※部屋・階数により設備が異なる場合がございます。 |
ハウス岩本町(HOUSE岩本町) 賃貸物件の空室情報
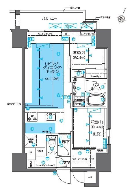
| 間取図 | 家賃 管理費等 |
敷金/保証金 礼金/償却 |
間取り 専有面積 |
方位物件 階層 |
詳細を見る お問い合わせする |
|---|---|---|---|---|---|
|
|
21.13万円 8,700円 |
1ヶ月/-- 1ヶ月/-- |
1LDK 41.14㎡ |
北西 12階 |
ハウス岩本町(HOUSE岩本町)周辺の空室物件
ハウス岩本町(HOUSE岩本町)周辺が得意な不動産店舗
- 交通
- 中央線/御茶ノ水駅 千代田線/新御茶ノ水駅 都営新宿線/小川町駅
- 所在地
- 東京都千代田区神田駿河台2-2-2 キントービル5階
掲載物件数:
408
件
03-6228-4882
