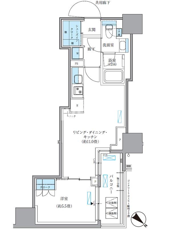
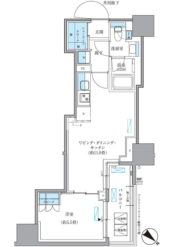
グリーンパーク日本橋アペゼ(GREEN PARK日本橋Apaiser)(東京都中央区東日本橋3丁目)の建物情報
グリーンパーク日本橋アペゼ(GREEN PARK日本橋Apaiser) 賃貸物件基本情報
このページの情報は広告情報ではありません。過去から現在までCHINTAIネットに掲載のあった物件情報を元に作成した参考ページです。
| 交通 |
銀座線/三越前駅
徒歩12分
都営浅草線/人形町駅 徒歩7分 都営浅草線/東日本橋駅 徒歩2分 都営新宿線/馬喰横山駅 徒歩2分 |
|---|---|
| 駐車場 | 駐車場なし |
| 環境 |
--
※部屋・階数により設備が異なる場合がございます。 |
| 建物設備 |
オートロック
/
宅配ボックス
/
防犯カメラ
/
エレベーター
/
24時間ゴミ出し可
/
敷地内ごみ置き場
/
風除室
/
都市ガス
/
公営上水道
/
下水道
※部屋・階数により設備が異なる場合がございます。 |
グリーンパーク日本橋アペゼ(GREEN PARK日本橋Apaiser)周辺の空室物件
中央区周辺が得意な不動産店舗
株式会社エイブル月島店
- オススメ
オススメポイント 月島、勝どき、豊洲、晴海周辺のお部屋探しは当店へお任せ下さい
- 交通
- 都営大江戸線/月島駅
- 所在地
- 東京都中央区月島1-3-13上むらビル1F
- 仲介手数料家賃の55%以下
- 駅から徒歩3分以内
- 多店舗展開
- 開店10年以上
掲載物件数:
860
件
- 得意駅
- 月島駅 勝どき駅 豊洲駅 新富町駅 築地駅 他
- 得意エリア
- 中央区 江東区 墨田区 千代田区 港区 他
03-6219-8071
