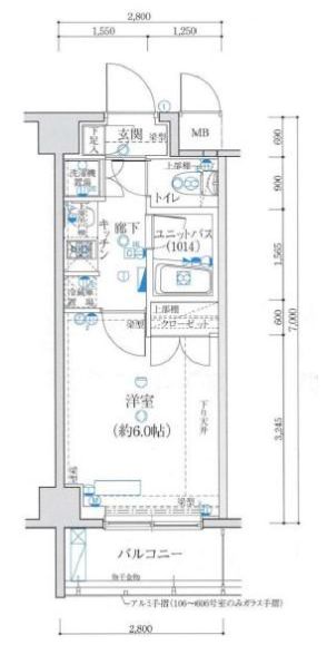
仮)カーサ・バラガン(東京都墨田区文花3丁目)の建物情報
仮)カーサ・バラガン 賃貸物件基本情報
このページの情報は広告情報ではありません。過去から現在までCHINTAIネットに掲載のあった物件情報を元に作成した参考ページです。
| 交通 |
総武線/平井駅
徒歩11分
東武亀戸線/小村井駅 徒歩4分 半蔵門線/押上駅 徒歩18分 |
|---|---|
| 駐車場 | 駐車場なし |
| 環境 |
--
※部屋・階数により設備が異なる場合がございます。 |
| 建物設備 |
オートロック
/
宅配ボックス
/
防犯カメラ
/
エレベーター
/
敷地内ごみ置き場
/
集合郵便受け
/
都市ガス
/
電気
/
公営上水道
/
下水道
/
駐輪場
※部屋・階数により設備が異なる場合がございます。 |
仮)カーサ・バラガン周辺の空室物件
墨田区周辺が得意な不動産店舗
株式会社エイブル押上店
- オススメ
オススメポイント 「観光」と「生活」が共生する水辺の街、押上
- 交通
- 半蔵門線/押上駅
- 所在地
- 東京都墨田区押上1-11-3リブレ吉野1F
- 仲介手数料家賃の55%以下
- 駅から徒歩3分以内
- 多店舗展開
- 年中無休
掲載物件数:
875
件
- 得意駅
- 押上駅 曳舟駅 東向島駅 とうきょうスカイツリー駅 押上駅 他
- 得意エリア
- 墨田区 台東区 江東区 葛飾区 足立区 他
03-3622-1161
