クレヴィスタ亀戸VI(東京都江東区亀戸4丁目)の建物情報
掲載中の賃貸物件は1件あります!
クレヴィスタ亀戸VI 賃貸物件基本情報
| 交通 |
半蔵門線/錦糸町駅
徒歩25分
総武線/亀戸駅 徒歩14分 東武亀戸線/亀戸駅 徒歩14分 総武線/平井駅 徒歩21分 東武亀戸線/小村井駅 徒歩11分 東武亀戸線/東あずま駅 徒歩12分 東武亀戸線/亀戸水神駅 徒歩11分 東武伊勢崎線・スカイツリーライン/押上駅 徒歩19分 半蔵門線/押上駅 徒歩22分 都営浅草線/押上駅 徒歩21分 |
|---|---|
| 駐車場 | 駐車場なし |
| 環境 |
2駅利用可
/
2沿線利用可
※部屋・階数により設備が異なる場合がございます。 |
| 建物設備 |
オートロック
/
宅配ボックス
/
防犯カメラ
/
エレベーター1基
/
敷地内ごみ置き場
/
都市ガス
/
公営上水道
/
駐輪場
※部屋・階数により設備が異なる場合がございます。 |
クレヴィスタ亀戸VI 賃貸物件の空室情報
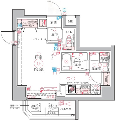
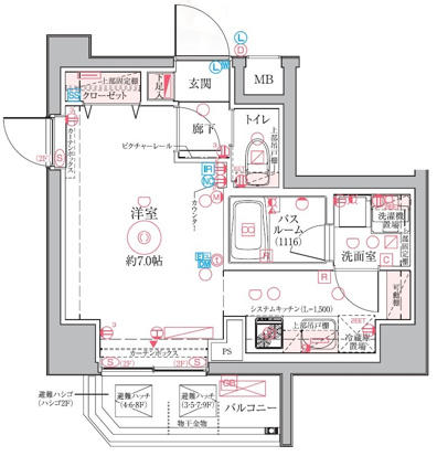
| 間取図 | 家賃 管理費等 |
敷金/保証金 礼金/償却 |
間取り 専有面積 |
方位物件 階層 |
詳細を見る お問い合わせする |
|---|---|---|---|---|---|
|
|
10.7万円 15,000円 |
--/-- --/-- |
1R 25.8㎡ |
南西 3階 |
クレヴィスタ亀戸VI周辺の空室物件
クレヴィスタ亀戸VI周辺が得意な不動産店舗
- 交通
- 総武線/亀戸駅 都営新宿線/西大島駅
- 所在地
- 東京都江東区亀戸6-59-7 プライマル亀戸2F
掲載物件数:
703
件
03-6228-4882
