YOSHIDA BLDG−01(東京都中野区東中野2丁目)の建物情報
YOSHIDA BLDG−01 賃貸物件基本情報
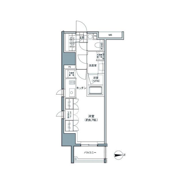
このページの情報は広告情報ではありません。過去から現在までCHINTAIネットに掲載のあった物件情報を元に作成した参考ページです。
| 交通 |
中央線/東中野駅
徒歩2分
都営大江戸線/東中野駅 徒歩2分 |
|---|---|
| 駐車場 | 駐車場なし |
| 環境 |
--
※部屋・階数により設備が異なる場合がございます。 |
| 建物設備 |
オートロック
/
宅配ボックス
/
エレベーター
/
駐輪場
※部屋・階数により設備が異なる場合がございます。 |
YOSHIDA BLDG−01周辺の空室物件
中野区周辺が得意な不動産店舗
株式会社エイブル鷺ノ宮店
- オススメ
オススメポイント 仲介手数料半月分♪ 女子割・リピート割・学割やってます!
- 交通
- 西武新宿線/鷺ノ宮駅
- 所在地
- 東京都中野区鷺宮3-18-3リファレンス鷺宮駅前1F
- 仲介手数料家賃の55%以下
- 駅から徒歩3分以内
- 多店舗展開
- 年中無休
掲載物件数:
224
件
- 得意駅
- 鷺ノ宮駅 野方駅 都立家政駅 下井草駅 井荻駅 他
- 得意エリア
- 中野区 杉並区 練馬区
03-3338-8126
