ライオンズシティ白金高輪-(東京都港区三田5丁目)の建物情報
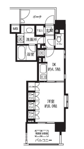
ライオンズシティ白金高輪- 賃貸物件基本情報
このページの情報は広告情報ではありません。過去から現在までCHINTAIネットに掲載のあった物件情報を元に作成した参考ページです。
| 交通 |
都営三田線/白金高輪駅
徒歩6分
南北線/白金高輪駅 徒歩6分 |
|---|---|
| 駐車場 | 駐車場あり |
| 環境 |
--
※部屋・階数により設備が異なる場合がございます。 |
| 建物設備 |
オートロック
/
宅配ボックス
/
防犯カメラ
/
エレベーター
/
24時間ゴミ出し可
/
都市ガス
/
駐車2台可
※部屋・階数により設備が異なる場合がございます。 |
ライオンズシティ白金高輪-周辺の空室物件
港区周辺が得意な不動産店舗
株式会社エイブル麻布店
- オススメ
オススメポイント 六本木ヒルズ徒歩圏内です!ぜひご相談ください!
- 交通
- 南北線/麻布十番駅
- 所在地
- 東京都港区六本木6-17-1蟻川ビル1F
- 仲介手数料家賃の55%以下
- 駅まで車で送迎可
- 多店舗展開
- 開店10年以上
掲載物件数:
581
件
- 得意駅
- 麻布十番駅 白金台駅 白金高輪駅 広尾駅 六本木駅 他
- 得意エリア
- 港区 渋谷区 千代田区 中央区 江東区 他
03-5411-2171
