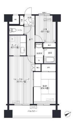
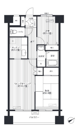
台東区根岸4丁目戸建(東京都台東区根岸4丁目)の建物情報
台東区根岸4丁目戸建 賃貸物件基本情報
このページの情報は広告情報ではありません。過去から現在までCHINTAIネットに掲載のあった物件情報を元に作成した参考ページです。
| 交通 |
山手線/鶯谷駅
徒歩8分
日比谷線/三ノ輪駅 徒歩13分 日比谷線/入谷駅 徒歩8分 |
|---|---|
| 駐車場 | 駐車場あり |
| 環境 |
2駅利用可
/
3沿線駅利用可
/
閑静な住宅地
※部屋・階数により設備が異なる場合がございます。 |
| 建物設備 |
都市ガス
/
電気
/
公営上水道
/
下水道
/
駐車場1台無料
/
駐輪場
※部屋・階数により設備が異なる場合がございます。 |
台東区根岸4丁目戸建周辺の空室物件
台東区周辺が得意な不動産店舗
株式会社エイブル上野店
- オススメ
- 動画
オススメポイント お買い物!レジャー!お部屋探しはアメ横で有名な上野で!
- 交通
- 山手線/上野駅
- 所在地
- 東京都台東区上野4-5-6ウィズビル6F
- 仲介手数料家賃の55%以下
- 多店舗展開
- 開店10年以上
- 保証人不要相談可
掲載物件数:
674
件
- 得意駅
- 上野駅 秋葉原駅 日暮里駅 上野広小路駅 浅草駅 他
- 得意エリア
- 台東区 千代田区 文京区 墨田区 北区 他
03-3833-8126
