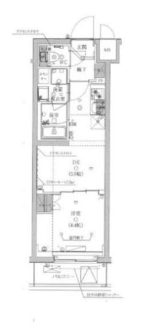
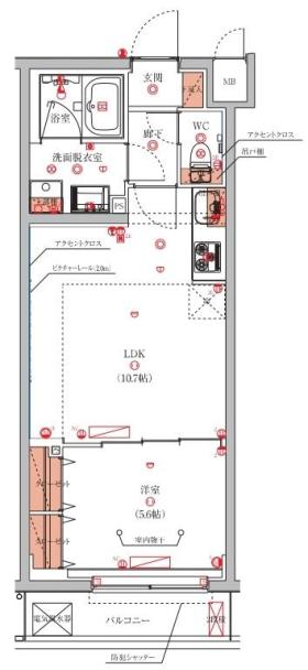
Kolet墨田八広(東京都墨田区八広2丁目51-4)の建物情報
Kolet墨田八広 賃貸物件基本情報
このページの情報は広告情報ではありません。過去から現在までCHINTAIネットに掲載のあった物件情報を元に作成した参考ページです。
| 交通 |
東武伊勢崎線・スカイツリーライン/曳舟駅
徒歩12分
東武亀戸線/小村井駅 徒歩9分 京成押上線/京成曳舟駅 徒歩11分 |
|---|---|
| 駐車場 | 駐車場あり |
| 環境 |
2駅利用可
/
2沿線利用可
※部屋・階数により設備が異なる場合がございます。 |
| 建物設備 |
宅配ボックス
/
都市ガス
※部屋・階数により設備が異なる場合がございます。 |
Kolet墨田八広周辺の空室物件
墨田区周辺が得意な不動産店舗
株式会社エイブル押上店
- オススメ
オススメポイント 「観光」と「生活」が共生する水辺の街、押上
- 交通
- 半蔵門線/押上駅
- 所在地
- 東京都墨田区押上1-11-3リブレ吉野1F
- 仲介手数料家賃の55%以下
- 駅から徒歩3分以内
- 多店舗展開
- 年中無休
掲載物件数:
812
件
- 得意駅
- 押上駅 曳舟駅 東向島駅 とうきょうスカイツリー駅 押上駅 他
- 得意エリア
- 墨田区 台東区 江東区 葛飾区 足立区 他
03-3622-1161
