ザ等々力アジト(東京都世田谷区等々力7丁目)の建物情報
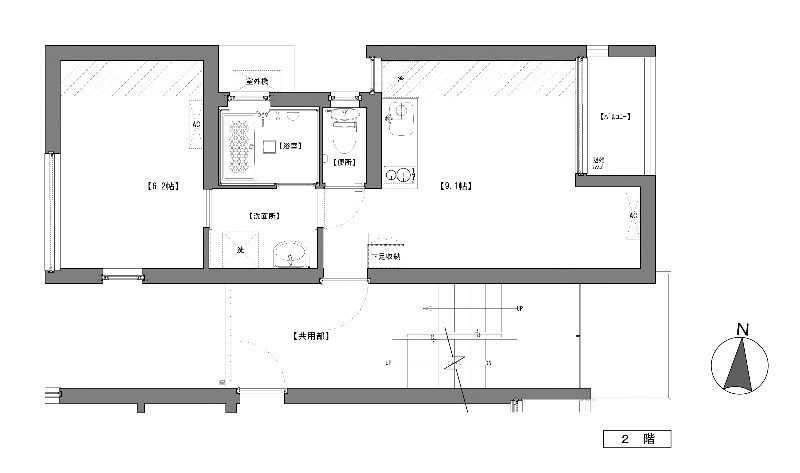
ザ等々力アジト 賃貸物件基本情報
このページの情報は広告情報ではありません。過去から現在までCHINTAIネットに掲載のあった物件情報を元に作成した参考ページです。
| 交通 |
東急東横線/都立大学駅
徒歩23分
東急大井町線/自由が丘駅 徒歩24分 東急東横線/自由が丘駅 徒歩24分 東急目黒線/奥沢駅 徒歩29分 東急大井町線/九品仏駅 徒歩21分 東急大井町線/尾山台駅 徒歩16分 東急大井町線/等々力駅 徒歩20分 東急大井町線/上野毛駅 徒歩27分 |
|---|---|
| 駐車場 | 駐車場なし |
| 環境 |
3駅利用可
/
2沿線利用可
/
閑静な住宅地
※部屋・階数により設備が異なる場合がございます。 |
| 建物設備 |
都市ガス
/
公営上水道
※部屋・階数により設備が異なる場合がございます。 |
ザ等々力アジト周辺の空室物件
世田谷区周辺が得意な不動産店舗
株式会社エイブル下北沢店
- オススメ
オススメポイント 古着とカレーの街☆生活と文化の融合する街下北沢でお部屋探し♪
- 交通
- 小田急小田原線/下北沢駅
- 所在地
- 東京都世田谷区北沢2-12-8半戸ビルB1F
- 駅から徒歩3分以内
- 年中無休
- 仲介手数料家賃の55%以下
- 多店舗展開
掲載物件数:
290
件
- 得意駅
- 下北沢駅 代々木上原駅 駒場東大前駅 池ノ上駅 東北沢駅 他
- 得意エリア
- 新宿区 品川区 目黒区 渋谷区 中野区 他
03-5430-8311
