クレイシア板橋本町(東京都板橋区本町)の建物情報
掲載中の賃貸物件は1件あります!
クレイシア板橋本町 賃貸物件基本情報
| 交通 |
京浜東北線・根岸線/東十条駅
徒歩24分
埼京線・川越線/十条駅 徒歩19分 東武東上線/大山駅 徒歩28分 東武東上線/中板橋駅 徒歩24分 都営三田線/本蓮沼駅 徒歩17分 都営三田線/板橋本町駅 徒歩12分 都営三田線/板橋区役所前駅 徒歩21分 |
|---|---|
| 駐車場 | 駐車場なし |
| 環境 |
--
※部屋・階数により設備が異なる場合がございます。 |
| 建物設備 |
オートロック
/
宅配ボックス
/
防犯カメラ
/
エレベーター2基
/
電気
/
公営上水道
/
下水道
※部屋・階数により設備が異なる場合がございます。 |
クレイシア板橋本町 賃貸物件の空室情報
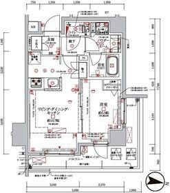
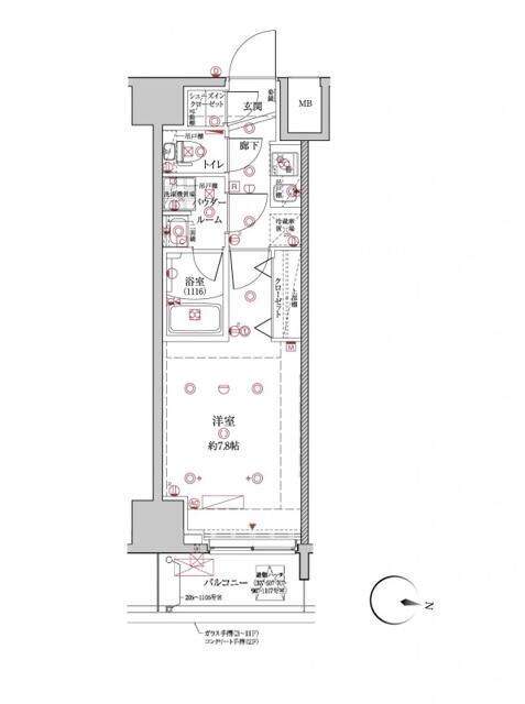
| 間取図 | 家賃 管理費等 |
敷金/保証金 礼金/償却 |
間取り 専有面積 |
方位物件 階層 |
詳細を見る お問い合わせする |
|---|---|---|---|---|---|
|
|
9万円 12,000円 |
1ヶ月/なし 1ヶ月/-- |
1K 25.43㎡ |
東 8階 |
