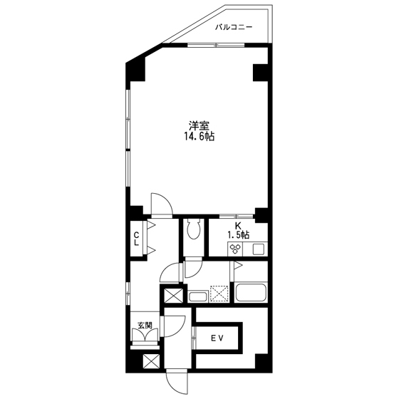
スペランツァ日本橋(東京都千代田区鍛冶町1丁目)の建物情報
スペランツァ日本橋 賃貸物件基本情報
このページの情報は広告情報ではありません。過去から現在までCHINTAIネットに掲載のあった物件情報を元に作成した参考ページです。
| 交通 |
山手線/神田駅
徒歩7分
京浜東北線・根岸線/神田駅 徒歩7分 銀座線/神田駅 徒歩7分 山手線/秋葉原駅 徒歩11分 総武線/新日本橋駅 徒歩3分 山手線/東京駅 徒歩16分 半蔵門線/三越前駅 徒歩7分 銀座線/三越前駅 徒歩7分 都営三田線/大手町駅 徒歩19分 日比谷線/小伝馬町駅 徒歩8分 千代田線/新御茶ノ水駅 徒歩19分 |
|---|---|
| 駐車場 | 駐車場あり |
| 環境 |
--
※部屋・階数により設備が異なる場合がございます。 |
| 建物設備 |
オートロック
/
宅配ボックス
/
防犯カメラ
/
エレベーター
/
24時間ゴミ出し可
/
敷地内ごみ置き場
/
都市ガス
/
電気
/
公営上水道
/
下水道
/
駐輪場
/
バイク置場
※部屋・階数により設備が異なる場合がございます。 |
スペランツァ日本橋周辺の空室物件
千代田区周辺が得意な不動産店舗
株式会社リブマックスリーシング神田店
- オススメ
オススメポイント 当店はどの物件も仲介手数料が賃料の半月分+税!
- 交通
- 山手線/神田駅
- 所在地
- 東京都千代田区鍛冶町2-1-1 ズイホウビル6階
- 駅から徒歩3分以内
- 多店舗展開
- 駅まで車で送迎可
- 社宅・寮対応物件あり
掲載物件数:
3666
件
- 得意駅
- 神田駅
- 得意エリア
- 千代田区
03-5295-1515
