ジェノヴィア両国IVスカイガーデン(東京都墨田区石原1丁目)の建物情報
掲載中の賃貸物件は1件あります!
ジェノヴィア両国IVスカイガーデン 賃貸物件基本情報
| 交通 |
総武線/両国駅
徒歩6分
都営大江戸線/両国駅 徒歩6分 銀座線/浅草駅 徒歩17分 都営浅草線/蔵前駅 徒歩7分 |
|---|---|
| 駐車場 | 駐車場あり |
| 環境 |
3駅利用可
/
3沿線駅利用可
/
駅まで平坦
※部屋・階数により設備が異なる場合がございます。 |
| 建物設備 |
オートロック
/
宅配ボックス
/
防犯カメラ
/
エレベーター1基
/
24時間ゴミ出し可
/
敷地内ごみ置き場
/
都市ガス
/
駐輪場
/
バイク置場
※部屋・階数により設備が異なる場合がございます。 |
ジェノヴィア両国IVスカイガーデン 賃貸物件の空室情報
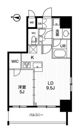
| 間取図 | 家賃 管理費等 |
敷金/保証金 礼金/償却 |
間取り 専有面積 |
方位物件 階層 |
詳細を見る お問い合わせする |
|---|---|---|---|---|---|
|
|
18.4万円 15,000円 |
--/-- --/-- |
1LDK 41.65㎡ |
西 2階 |
ジェノヴィア両国IVスカイガーデン周辺の空室物件
ジェノヴィア両国IVスカイガーデン周辺が得意な不動産店舗
株式会社タウンハウジング東京門前仲町店
- オススメ
- 交通
- 東西線/門前仲町駅
- 所在地
- 東京都江東区門前仲町1-6-14グリーンキャピタル門前仲町1階
- ChintaiNet掲載店舗
- Woman掲載店舗
掲載物件数:
3158
件
- 得意駅
- 得意エリア
03-3630-7722
