ハーモニーテラス向島(東京都墨田区東向島4丁目)の建物情報
ハーモニーテラス向島 賃貸物件基本情報
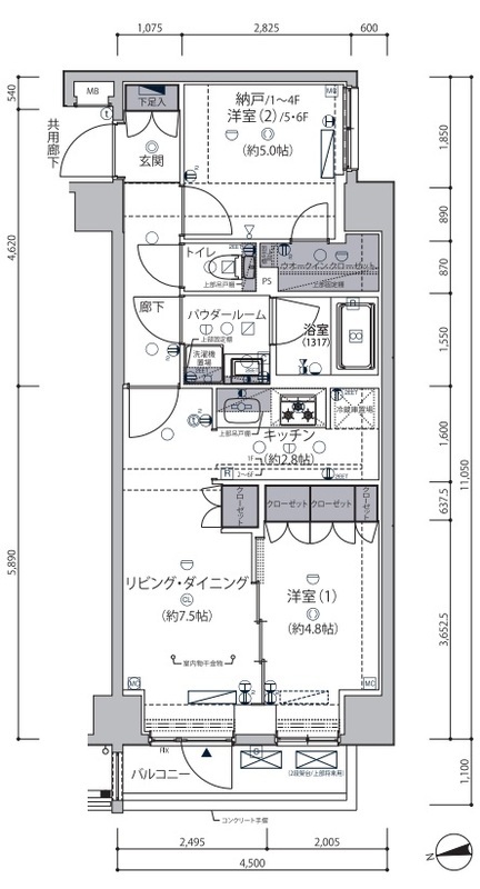
このページの情報は広告情報ではありません。過去から現在までCHINTAIネットに掲載のあった物件情報を元に作成した参考ページです。
| 交通 |
東武伊勢崎線・スカイツリーライン/鐘ケ淵駅
徒歩12分
都営浅草線/押上駅 徒歩8分 京成押上線/京成曳舟駅 徒歩14分 |
|---|---|
| 駐車場 | 駐車場なし |
| 環境 |
2駅利用可
/
2沿線利用可
※部屋・階数により設備が異なる場合がございます。 |
| 建物設備 |
LPガス
/
電気
/
公営上水道
/
下水道
※部屋・階数により設備が異なる場合がございます。 |
ハーモニーテラス向島周辺の空室物件
墨田区周辺が得意な不動産店舗
株式会社エイブル錦糸町店
- オススメ
オススメポイント エイブルは全ての物件の仲介手数料家賃が半月分(税抜)
- 交通
- 総武線/錦糸町駅
- 所在地
- 東京都墨田区江東橋3-14-10山本ビル3F
- 駅から徒歩3分以内
- 仲介手数料家賃の55%以下
- 多店舗展開
- 年中無休
掲載物件数:
736
件
- 得意駅
- 錦糸町駅 両国駅 亀戸駅 住吉駅 押上駅 他
- 得意エリア
- 墨田区 中央区 台東区 荒川区 足立区 他
03-5638-0081
