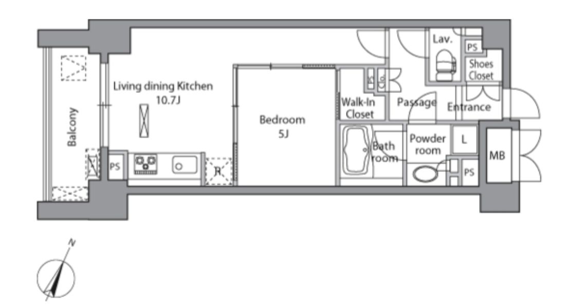
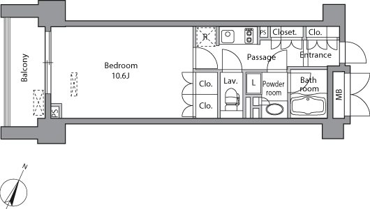
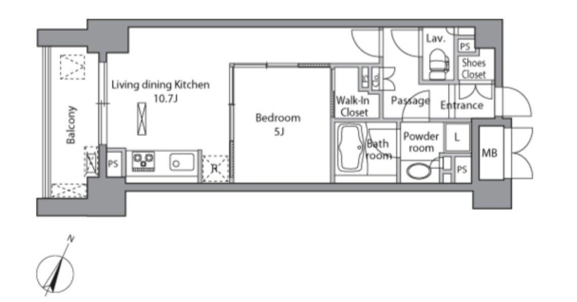
DUARES千代田三崎町(東京都千代田区神田三崎町3丁目)の建物情報
DUARES千代田三崎町 賃貸物件基本情報
このページの情報は広告情報ではありません。過去から現在までCHINTAIネットに掲載のあった物件情報を元に作成した参考ページです。
| 交通 |
総武線/水道橋駅
徒歩7分
都営三田線/水道橋駅 徒歩9分 総武線/飯田橋駅 徒歩11分 有楽町線/飯田橋駅 徒歩11分 東西線/飯田橋駅 徒歩7分 丸ノ内線/後楽園駅 徒歩13分 半蔵門線/九段下駅 徒歩11分 都営新宿線/九段下駅 徒歩11分 東西線/九段下駅 徒歩11分 |
|---|---|
| 駐車場 | 駐車場なし |
| 環境 |
3駅利用可
/
3沿線駅利用可
※部屋・階数により設備が異なる場合がございます。 |
| 建物設備 |
オートロック
/
宅配ボックス
/
防犯カメラ
/
エレベーター1基
/
24時間ゴミ出し可
/
敷地内ごみ置き場
/
都市ガス
/
公営上水道
※部屋・階数により設備が異なる場合がございます。 |
DUARES千代田三崎町周辺の空室物件
千代田区周辺が得意な不動産店舗
株式会社リブマックスリーシング神田店
- オススメ
オススメポイント 当店はどの物件も仲介手数料が賃料の半月分+税!
- 交通
- 山手線/神田駅
- 所在地
- 東京都千代田区鍛冶町2-1-1 ズイホウビル6階
- 駅から徒歩3分以内
- 多店舗展開
- 駅まで車で送迎可
- 社宅・寮対応物件あり
掲載物件数:
3666
件
- 得意駅
- 神田駅
- 得意エリア
- 千代田区
03-5295-1515
