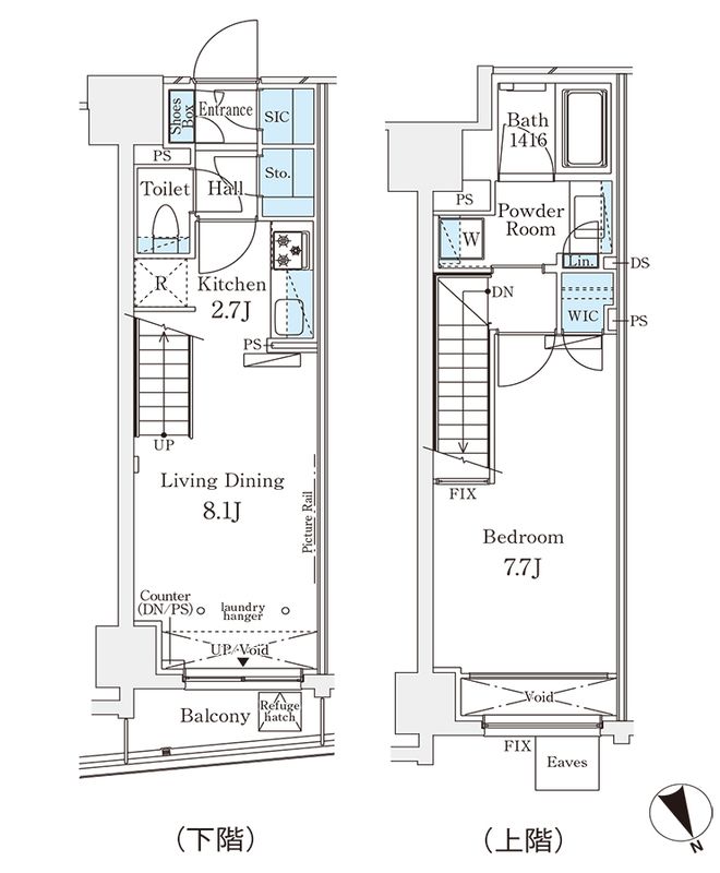
シティーコート南青山(東京都港区南青山7丁目)の建物情報
シティーコート南青山 賃貸物件基本情報
このページの情報は広告情報ではありません。過去から現在までCHINTAIネットに掲載のあった物件情報を元に作成した参考ページです。
| 交通 |
銀座線/表参道駅
徒歩14分
日比谷線/広尾駅 徒歩13分 千代田線/乃木坂駅 徒歩19分 |
|---|---|
| 駐車場 | 駐車場なし |
| 環境 |
3駅利用可
※部屋・階数により設備が異なる場合がございます。 |
| 建物設備 |
24時間ゴミ出し可
/
敷地内ごみ置き場
/
都市ガス
/
電気
/
公営上水道
/
下水道
/
駐輪場
※部屋・階数により設備が異なる場合がございます。 |
シティーコート南青山周辺の空室物件
港区周辺が得意な不動産店舗
株式会社エイブル六本木店
- オススメ
オススメポイント 東京ミッドタウン・六本木ヒルズ徒歩圏です!是非ご相談ください
- 交通
- 都営大江戸線/六本木駅
- 所在地
- 東京都港区六本木7-8-11ROPPONGI D.A.FRONT2F
- 多店舗展開
- 女性スタッフ対応
- 英語対応可
- 仲介手数料家賃の55%以下
掲載物件数:
502
件
- 得意駅
- 六本木駅 麻布十番駅 青山一丁目駅 広尾駅 恵比寿駅 他
- 得意エリア
- 港区 目黒区 渋谷区 新宿区 千代田区 他
03-5413-4180
