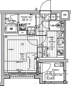
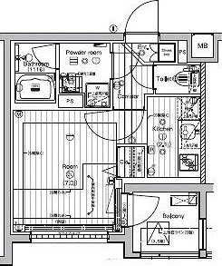
あやめはうす(東京都新宿区中井2丁目)の建物情報
あやめはうす 賃貸物件基本情報
このページの情報は広告情報ではありません。過去から現在までCHINTAIネットに掲載のあった物件情報を元に作成した参考ページです。
| 交通 |
総武線/東中野駅
徒歩20分
西武池袋線/椎名町駅 徒歩17分 西武新宿線/下落合駅 徒歩16分 西武新宿線/中井駅 徒歩7分 都営大江戸線/中井駅 徒歩7分 東西線/落合駅 徒歩15分 都営大江戸線/落合南長崎駅 徒歩11分 |
|---|---|
| 駐車場 | 駐車場なし |
| 環境 |
2駅利用可
/
2沿線利用可
※部屋・階数により設備が異なる場合がございます。 |
| 建物設備 |
防犯カメラ
/
都市ガス
/
電気
/
公営上水道
/
下水道
/
駐輪場
※部屋・階数により設備が異なる場合がございます。 |
あやめはうす周辺の空室物件
新宿区周辺が得意な不動産店舗
株式会社エイブル高田馬場店
- オススメ
オススメポイント ターミナル駅ならではの幅広いご提案が出来る店舗です!
- 交通
- 山手線/高田馬場駅
- 所在地
- 東京都新宿区高田馬場2-14-6スワンビル1F
- 中国語対応可
- 仲介手数料家賃の55%以下
- 多店舗展開
- 年中無休
掲載物件数:
303
件
- 得意駅
- 高田馬場駅 早稲田駅 西早稲田駅 新大久保駅 雑司が谷駅 他
- 得意エリア
- 新宿区 文京区 中野区 杉並区 豊島区 他
03-3205-2661
