メゾンムラタ/上馬3丁目(東京都世田谷区上馬3丁目)の建物情報
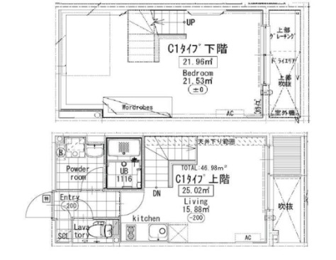
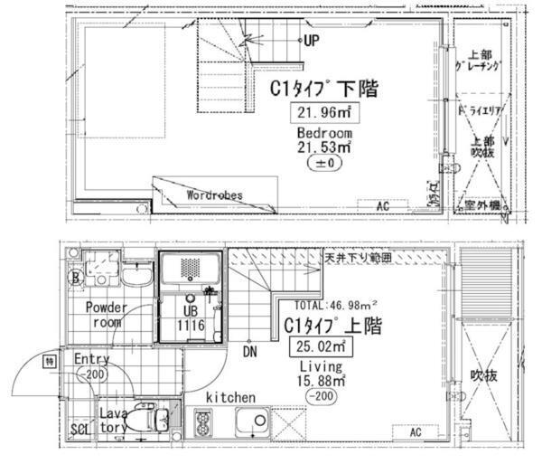
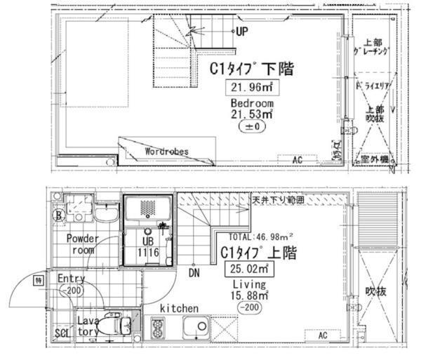
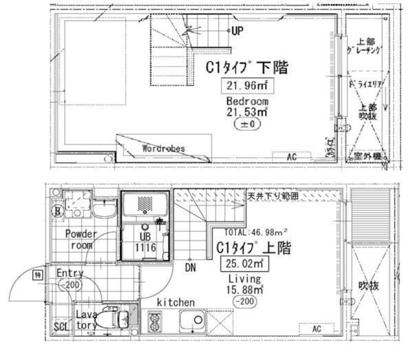
メゾンムラタ/上馬3丁目 賃貸物件基本情報
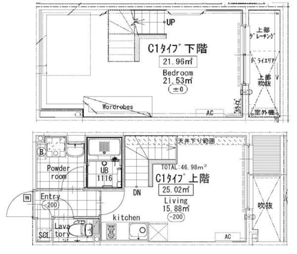
このページの情報は広告情報ではありません。過去から現在までCHINTAIネットに掲載のあった物件情報を元に作成した参考ページです。
| 交通 |
東急田園都市線/三軒茶屋駅
徒歩17分
東急田園都市線/駒沢大学駅 徒歩2分 東急世田谷線/西太子堂駅 徒歩16分 |
|---|---|
| 駐車場 | 駐車場あり |
| 環境 |
3駅利用可
/
2沿線利用可
/
閑静な住宅地
/
公園まで歩いて10分(800m)以内
※部屋・階数により設備が異なる場合がございます。 |
| 建物設備 |
都市ガス
/
電気
/
下水道
/
平面駐車場
※部屋・階数により設備が異なる場合がございます。 |
メゾンムラタ/上馬3丁目周辺の空室物件
世田谷区周辺が得意な不動産店舗
株式会社エイブル経堂店
- オススメ
オススメポイント ☆良い部屋を探し思い出に残るお部屋探しをお手伝い致します☆
- 交通
- 小田急小田原線/経堂駅
- 所在地
- 東京都世田谷区経堂1-11-9マークビル1F
- 多店舗展開
- 年中無休
- 開店10年以上
- 引越会社紹介
掲載物件数:
153
件
- 得意駅
- 経堂駅 下北沢駅 豪徳寺駅 千歳船橋駅 祖師ヶ谷大蔵駅 他
- 得意エリア
- 世田谷区 新宿区 調布市 川崎市多摩区 三鷹市 他
03-5450-1651
