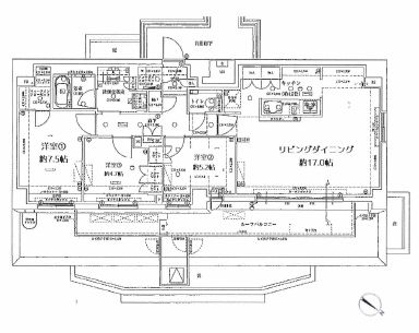
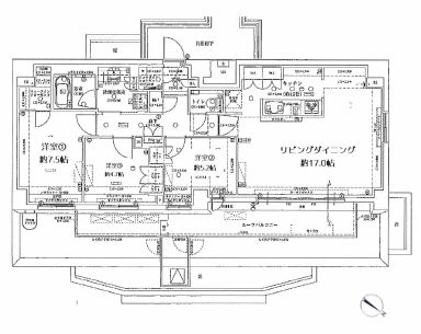
クラッシィハウス谷中道灌山W棟(東京都台東区谷中3丁目)の建物情報
クラッシィハウス谷中道灌山W棟 賃貸物件基本情報
このページの情報は広告情報ではありません。過去から現在までCHINTAIネットに掲載のあった物件情報を元に作成した参考ページです。
| 交通 |
山手線/日暮里駅
徒歩14分
京浜東北線・根岸線/日暮里駅 徒歩14分 常磐線/日暮里駅 徒歩14分 京成本線/日暮里駅 徒歩15分 山手線/西日暮里駅 徒歩6分 京浜東北線・根岸線/西日暮里駅 徒歩6分 都営日暮里・舎人ライナー/西日暮里駅 徒歩6分 千代田線/西日暮里駅 徒歩6分 山手線/田端駅 徒歩13分 京浜東北線・根岸線/田端駅 徒歩14分 千代田線/千駄木駅 徒歩10分 南北線/本駒込駅 徒歩17分 |
|---|---|
| 駐車場 | 駐車場なし |
| 環境 |
3沿線駅利用可
/
閑静な住宅地
※部屋・階数により設備が異なる場合がございます。 |
| 建物設備 |
オートロック
/
宅配ボックス
/
防犯カメラ
/
エレベーター1基
/
都市ガス
/
公営上水道
/
駐輪場
※部屋・階数により設備が異なる場合がございます。 |
クラッシィハウス谷中道灌山W棟周辺の空室物件
台東区周辺が得意な不動産店舗
株式会社エイブル浅草橋店
- オススメ
オススメポイント 都心と下町が融合した街、浅草橋
- 交通
- 総武線/浅草橋駅
- 所在地
- 東京都台東区浅草橋1-9-13第111東京ビル3F
- 仲介手数料家賃の55%以下
- 駅から徒歩3分以内
- 多店舗展開
- 年中無休
掲載物件数:
1052
件
- 得意駅
- 浅草橋駅 浅草橋駅 押上駅 蔵前駅 浅草駅 他
- 得意エリア
- 台東区 千代田区 中央区 墨田区 江東区 他
03-5833-8871
