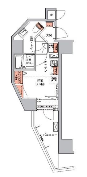
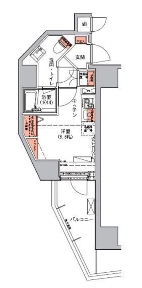
慶応マンション(東京都港区三田3丁目)の建物情報
慶応マンション 賃貸物件基本情報
このページの情報は広告情報ではありません。過去から現在までCHINTAIネットに掲載のあった物件情報を元に作成した参考ページです。
| 交通 |
山手線/田町駅
徒歩5分
都営浅草線/泉岳寺駅 徒歩10分 都営三田線/白金高輪駅 徒歩12分 南北線/白金高輪駅 徒歩12分 都営三田線/三田駅 徒歩5分 都営浅草線/三田駅 徒歩5分 都営大江戸線/赤羽橋駅 徒歩10分 |
|---|---|
| 駐車場 | 駐車場なし |
| 環境 |
4駅以上利用可
/
4沿線以上利用可
※部屋・階数により設備が異なる場合がございます。 |
| 建物設備 |
管理人有り
/
敷地内ごみ置き場
/
集合郵便受け
/
都市ガス
/
電気
/
公営上水道
/
下水道
/
駐輪場
※部屋・階数により設備が異なる場合がございます。 |
慶応マンション周辺の空室物件
港区周辺が得意な不動産店舗
株式会社エイブル麻布店
- オススメ
オススメポイント 都心の賃貸マンションをお探しの際は麻布店へお任せ下さい。
- 交通
- 南北線/麻布十番駅
- 所在地
- 東京都港区六本木6-17-1蟻川ビル1F
- 仲介手数料家賃の55%以下
- 駅まで車で送迎可
- 多店舗展開
- 開店10年以上
掲載物件数:
513
件
- 得意駅
- 麻布十番駅 白金台駅 白金高輪駅 広尾駅 六本木駅 他
- 得意エリア
- 港区 渋谷区 千代田区 中央区 江東区 他
03-5411-2171
