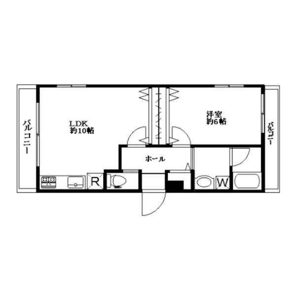
ポムポリア(東京都杉並区阿佐谷北1丁目)の建物情報
ポムポリア 賃貸物件基本情報
このページの情報は広告情報ではありません。過去から現在までCHINTAIネットに掲載のあった物件情報を元に作成した参考ページです。
| 交通 |
中央線/阿佐ケ谷駅
徒歩7分
丸ノ内線/南阿佐ケ谷駅 徒歩15分 |
|---|---|
| 駐車場 | 駐車場なし |
| 環境 |
2駅利用可
/
2沿線利用可
/
閑静な住宅地
※部屋・階数により設備が異なる場合がございます。 |
| 建物設備 |
都市ガス
/
電気
/
下水道
※部屋・階数により設備が異なる場合がございます。 |
ポムポリア周辺の空室物件
杉並区周辺が得意な不動産店舗
株式会社エイブル桜上水店
- オススメ
オススメポイント 【楽しいお部屋探し】を提供いたします。是非ご来店くださいませ
- 交通
- 京王線・京王新線/桜上水駅
- 所在地
- 東京都杉並区下高井戸1-22-2シルバ桜上水1F
- 駅から徒歩3分以内
- 仲介手数料家賃の55%以下
- 多店舗展開
- 年中無休
掲載物件数:
242
件
- 得意駅
- 桜上水駅 経堂駅 笹塚駅 調布駅 八幡山駅 他
- 得意エリア
- 杉並区 世田谷区 調布市 狛江市 川崎市多摩区 他
03-5316-5633
