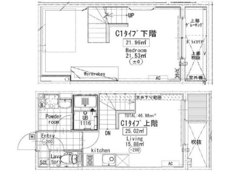
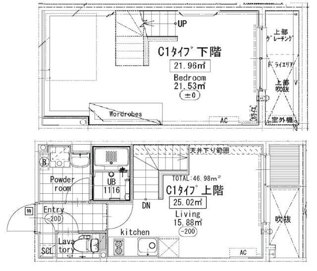
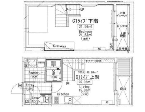
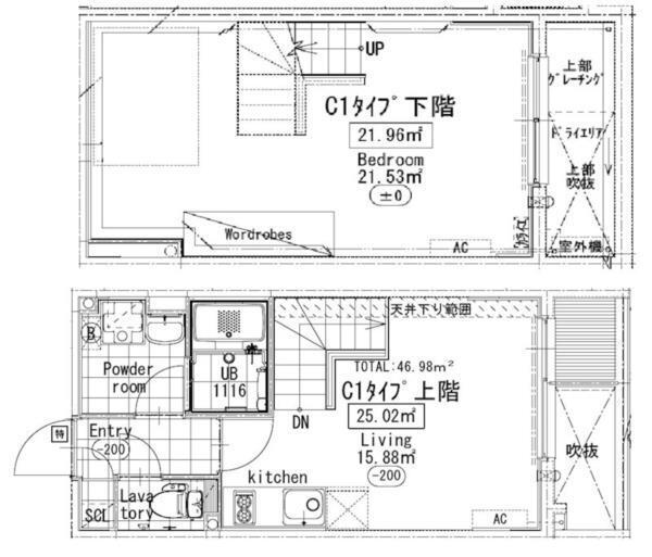
サン・アヴェニュー(東京都世田谷区上馬3丁目)の建物情報
サン・アヴェニュー 賃貸物件基本情報
このページの情報は広告情報ではありません。過去から現在までCHINTAIネットに掲載のあった物件情報を元に作成した参考ページです。
| 交通 |
東急東横線/学芸大学駅
徒歩30分
東急田園都市線/三軒茶屋駅 徒歩17分 東急田園都市線/駒沢大学駅 徒歩5分 東急世田谷線/西太子堂駅 徒歩22分 東急世田谷線/若林駅 徒歩24分 |
|---|---|
| 駐車場 | 駐車場なし |
| 環境 |
2駅利用可
/
2沿線利用可
※部屋・階数により設備が異なる場合がございます。 |
| 建物設備 |
オートロック
/
都市ガス
/
電気
/
公営上水道
/
下水道
/
駐輪場
※部屋・階数により設備が異なる場合がございます。 |
サン・アヴェニュー周辺の空室物件
世田谷区周辺が得意な不動産店舗
株式会社エイブル祖師ヶ谷大蔵店
- オススメ
オススメポイント 本当に最適な物件をご提案!ただの不動産屋ではありません!
- 交通
- 小田急小田原線/祖師ヶ谷大蔵駅
- 所在地
- 東京都世田谷区砧6-18-5LaLa奈津妃1F
- 多店舗展開
- 仲介手数料家賃の55%以下
- 駅から徒歩3分以内
- 年中無休
掲載物件数:
142
件
- 得意駅
- 祖師ヶ谷大蔵駅 成城学園前駅 千歳船橋駅 喜多見駅 狛江駅 他
- 得意エリア
- 世田谷区 狛江市 川崎市多摩区 渋谷区 三鷹市 他
03-3749-8126
