コトー中野(東京都中野区中央2丁目)の建物情報
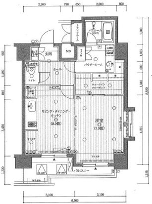
コトー中野 賃貸物件基本情報
このページの情報は広告情報ではありません。過去から現在までCHINTAIネットに掲載のあった物件情報を元に作成した参考ページです。
| 交通 |
中央線/東中野駅
徒歩19分
総武線/東中野駅 徒歩19分 都営大江戸線/東中野駅 徒歩19分 中央線/中野駅 徒歩21分 丸ノ内線/中野坂上駅 徒歩9分 都営大江戸線/中野坂上駅 徒歩9分 丸ノ内線/新中野駅 徒歩13分 丸ノ内線/中野新橋駅 徒歩16分 東西線/落合駅 徒歩17分 都営大江戸線/西新宿五丁目駅 徒歩21分 |
|---|---|
| 駐車場 | 駐車場あり |
| 環境 |
3駅利用可
/
3沿線駅利用可
※部屋・階数により設備が異なる場合がございます。 |
| 建物設備 |
管理人有り
/
敷地内ごみ置き場
/
集合郵便受け
/
都市ガス
/
電気
/
公営上水道
/
下水道
/
駐輪場
※部屋・階数により設備が異なる場合がございます。 |
コトー中野周辺の空室物件
中野区周辺が得意な不動産店舗
株式会社エイブル東中野店
- オススメ
オススメポイント 【お客様へ安心安全なお部屋探し環境の提供を第一に営業中です】
- 交通
- 総武線/東中野駅
- 所在地
- 東京都中野区東中野3-1-20不二園ビル2F
- 駅から徒歩3分以内
- 仲介手数料家賃の55%以下
- 多店舗展開
- 年中無休
掲載物件数:
291
件
- 得意駅
- 東中野駅 大久保駅 下落合駅 方南町駅 落合駅 他
- 得意エリア
- 中野区 杉並区 新宿区 渋谷区 目黒区 他
03-5925-1533
