-根岸ハイツ-(東京都台東区根岸3丁目)の建物情報
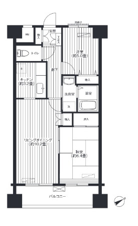
-根岸ハイツ- 賃貸物件基本情報
このページの情報は広告情報ではありません。過去から現在までCHINTAIネットに掲載のあった物件情報を元に作成した参考ページです。
| 交通 |
山手線/鶯谷駅
徒歩5分
日比谷線/入谷駅 徒歩5分 |
|---|---|
| 駐車場 | 駐車場なし |
| 環境 |
--
※部屋・階数により設備が異なる場合がございます。 |
| 建物設備 |
都市ガス
/
灯油ボイラー
/
電気
/
公営上水道
/
下水道
※部屋・階数により設備が異なる場合がございます。 |
-根岸ハイツ-周辺の空室物件
台東区周辺が得意な不動産店舗
株式会社エイブル浅草橋店
- オススメ
オススメポイント 都心と下町が融合した街、浅草橋
- 交通
- 総武線/浅草橋駅
- 所在地
- 東京都台東区浅草橋1-9-13第111東京ビル3F
- 仲介手数料家賃の55%以下
- 駅から徒歩3分以内
- 多店舗展開
- 年中無休
掲載物件数:
1067
件
- 得意駅
- 浅草橋駅 浅草橋駅 押上駅 蔵前駅 浅草駅 他
- 得意エリア
- 台東区 千代田区 中央区 墨田区 江東区 他
03-5833-8871
