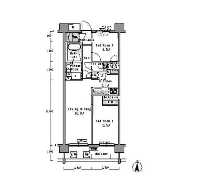
レオパレス滝野川(東京都北区滝野川4丁目)の建物情報
レオパレス滝野川 賃貸物件基本情報
このページの情報は広告情報ではありません。過去から現在までCHINTAIネットに掲載のあった物件情報を元に作成した参考ページです。
| 交通 |
埼京線・川越線/板橋駅
徒歩12分
都営三田線/新板橋駅 徒歩9分 |
|---|---|
| 駐車場 | 駐車場なし |
| 環境 |
--
※部屋・階数により設備が異なる場合がございます。 |
| 建物設備 |
都市ガス
/
公営上水道
/
下水道
※部屋・階数により設備が異なる場合がございます。 |
レオパレス滝野川周辺の空室物件
北区周辺が得意な不動産店舗
株式会社エイブル板橋店
- オススメ
オススメポイント 仲介手数料は賃料の55%!女子割、学割、リピート割あり!
- 交通
- 埼京線・川越線/板橋駅
- 所在地
- 東京都北区滝野川6-86-2EMINAZ板橋駅前1F
- 仲介手数料家賃の55%以下
- 年中無休
- 女性スタッフ対応
- 駅から徒歩3分以内
掲載物件数:
189
件
- 得意駅
- 板橋駅 新板橋駅 下板橋駅 板橋区役所前駅 西巣鴨駅 他
- 得意エリア
- 板橋区 豊島区 北区
03-6770-0650
