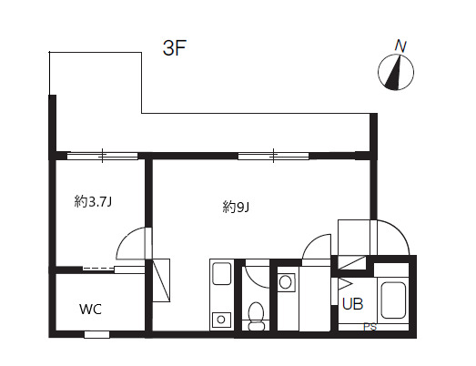
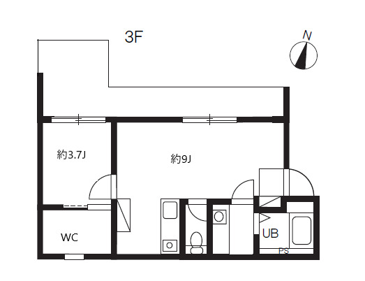
ルーブル池上六番館-(東京都大田区池上4丁目)の建物情報
ルーブル池上六番館- 賃貸物件基本情報
このページの情報は広告情報ではありません。過去から現在までCHINTAIネットに掲載のあった物件情報を元に作成した参考ページです。
| 交通 |
東急池上線/池上駅
徒歩7分
東急池上線/蓮沼駅 徒歩15分 都営浅草線/西馬込駅 徒歩22分 |
|---|---|
| 駐車場 | 駐車場なし |
| 環境 |
--
※部屋・階数により設備が異なる場合がございます。 |
| 建物設備 |
オートロック
/
宅配ボックス
/
防犯カメラ
/
エレベーター
/
24時間ゴミ出し可
/
都市ガス
※部屋・階数により設備が異なる場合がございます。 |
ルーブル池上六番館-周辺の空室物件
大田区周辺が得意な不動産店舗
株式会社エイブル蒲田東口店
- オススメ
オススメポイント 地域密着×実績多数。安心で理想のお部屋探しなら当店へ!
- 交通
- 京浜東北線・根岸線/蒲田駅
- 所在地
- 東京都大田区蒲田5-9-12蒲田東口ビル1・2F
- 保証人不要相談可
- 仲介手数料家賃の55%以下
- 駅から徒歩3分以内
- 多店舗展開
掲載物件数:
272
件
- 得意駅
- 蒲田駅 大井町駅 大森駅 京急蒲田駅 梅屋敷駅 他
- 得意エリア
- 大田区 港区 品川区 目黒区 世田谷区 他
03-3737-8126
