スカーラ代官山(207)(東京都渋谷区代官山町)の建物情報
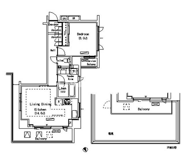
スカーラ代官山(207) 賃貸物件基本情報
このページの情報は広告情報ではありません。過去から現在までCHINTAIネットに掲載のあった物件情報を元に作成した参考ページです。
| 交通 |
山手線/恵比寿駅
徒歩12分
山手線/渋谷駅 徒歩15分 東急東横線/代官山駅 徒歩6分 |
|---|---|
| 駐車場 | 駐車場なし |
| 環境 |
--
※部屋・階数により設備が異なる場合がございます。 |
| 建物設備 |
オートロック
/
宅配ボックス
/
防犯カメラ
/
エレベーター1基
/
24時間ゴミ出し可
/
敷地内ごみ置き場
/
集合郵便受け
/
都市ガス
/
電気
/
公営上水道
/
下水道
/
駐輪場
※部屋・階数により設備が異なる場合がございます。 |
スカーラ代官山(207)周辺の空室物件
渋谷区周辺が得意な不動産店舗
株式会社エイブル渋谷店
- オススメ
オススメポイント 叶えます!希望物件♪渋谷に来れば何とかなる!英語接客可能!
- 交通
- 山手線/渋谷駅
- 所在地
- 東京都渋谷区渋谷1-24-15ヒューリック渋谷宮益坂ビル4F
- 女性スタッフ対応
- 仲介手数料家賃の55%以下
- 駅から徒歩3分以内
- 多店舗展開
掲載物件数:
757
件
- 得意駅
- 渋谷駅 三軒茶屋駅 代々木公園駅 原宿駅 下北沢駅 他
- 得意エリア
- 渋谷区 港区 新宿区 目黒区 世田谷区 他
03-3499-8911
