クレイシア亀戸(東京都江東区亀戸2丁目)の建物情報
掲載中の賃貸物件は4件あります!
クレイシア亀戸 賃貸物件基本情報
| 交通 |
山手線/秋葉原駅
徒歩64分
総武線/錦糸町駅 徒歩18分 半蔵門線/錦糸町駅 徒歩18分 総武線/亀戸駅 徒歩6分 東武亀戸線/亀戸駅 徒歩6分 東武亀戸線/東あずま駅 徒歩23分 東武亀戸線/亀戸水神駅 徒歩17分 半蔵門線/住吉駅 徒歩22分 都営新宿線/住吉駅 徒歩22分 都営新宿線/西大島駅 徒歩17分 |
|---|---|
| 駐車場 | 駐車場なし |
| 環境 |
3駅利用可
/
3沿線駅利用可
/
平坦地
/
駅まで平坦
※部屋・階数により設備が異なる場合がございます。 |
| 建物設備 |
オートロック
/
宅配ボックス
/
防犯カメラ
/
エレベーター1基
/
24時間ゴミ出し可
/
敷地内ごみ置き場
/
都市ガス
/
公営上水道
/
駐輪場
※部屋・階数により設備が異なる場合がございます。 |
クレイシア亀戸 賃貸物件の空室情報
| 間取図 | 家賃 管理費等 |
敷金/保証金 礼金/償却 |
間取り 専有面積 |
方位物件 階層 |
詳細を見る お問い合わせする |
|---|---|---|---|---|---|
|
|
10.2万円 12,000円 |
1ヶ月/-- 1ヶ月/-- |
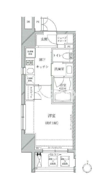
1R 26.31㎡ |
北 7階 |
|
|
|
10.2万円 12,000円 |
1ヶ月/-- 1ヶ月/-- |
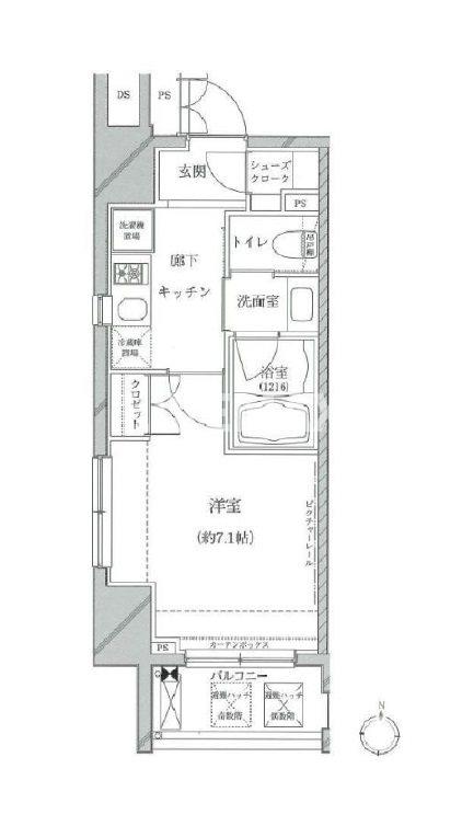
1R 26.31㎡ |
西 7階 |
|
|
|
10.2万円 12,000円 |
1ヶ月/-- 1ヶ月/-- |
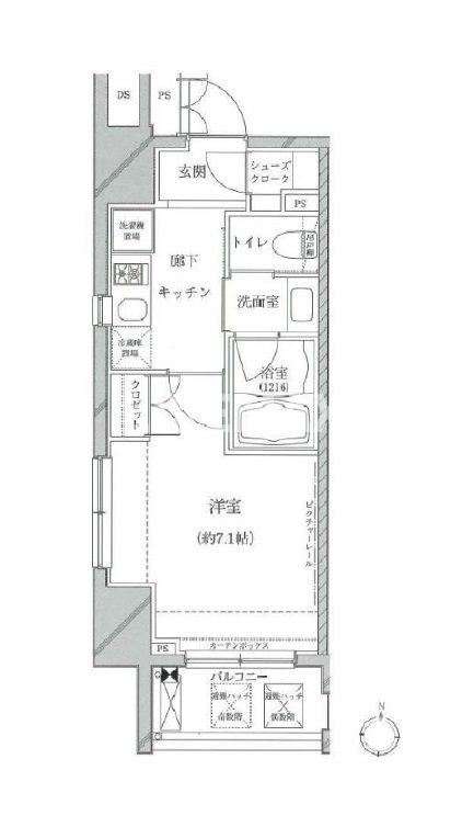
1R 26.31㎡ |
北 7階 |
|
|
|
10.2万円 12,000円 |
1ヶ月/-- 1ヶ月/-- |
1R 26.31㎡ |
北 7階 |
クレイシア亀戸周辺の空室物件
クレイシア亀戸周辺が得意な不動産店舗
株式会社タウンハウジング東京秋葉原店
- オススメ
- 交通
- 山手線/秋葉原駅
- 所在地
- 東京都千代田区神田岩本町1番地峯岸ビル1階
- ChintaiNet掲載店舗
- Woman掲載店舗
掲載物件数:
3475
件
- 得意駅
- 得意エリア
03-3258-7171
