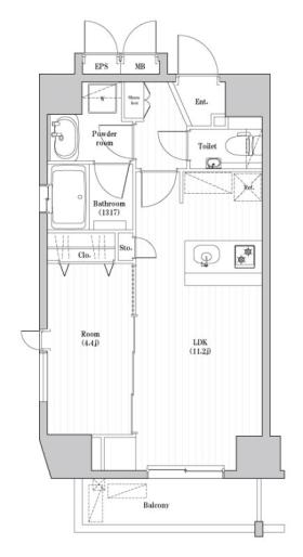
ケーエスハイム(301)(東京都練馬区東大泉3丁目)の建物情報
ケーエスハイム(301) 賃貸物件基本情報
このページの情報は広告情報ではありません。過去から現在までCHINTAIネットに掲載のあった物件情報を元に作成した参考ページです。
| 交通 |
西武池袋線/大泉学園駅
徒歩4分
西武池袋線/保谷駅 徒歩24分 |
|---|---|
| 駐車場 | 駐車場なし |
| 環境 |
--
※部屋・階数により設備が異なる場合がございます。 |
| 建物設備 |
都市ガス
/
灯油ボイラー
/
電気
/
公営上水道
/
下水道
※部屋・階数により設備が異なる場合がございます。 |
ケーエスハイム(301)周辺の空室物件
練馬区周辺が得意な不動産店舗
株式会社エイブル富士見台店
- オススメ
オススメポイント 安心・安全にお部屋探しのサポートをさせて頂きます!
- 交通
- 西武池袋線/富士見台駅
- 所在地
- 東京都練馬区貫井3-7-8増田ビル1F
- 年中無休
- 仲介手数料家賃の55%以下
- 駅から徒歩3分以内
- 多店舗展開
掲載物件数:
420
件
- 得意駅
- 富士見台駅 中村橋駅 練馬高野台駅 石神井公園駅 練馬駅 他
- 得意エリア
- 練馬区 中野区 杉並区 板橋区 西東京市 他
03-3577-8126
