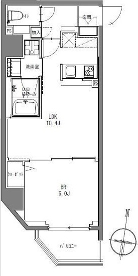
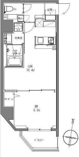
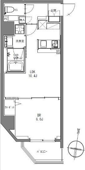
美奈見苑ビル(東京都大田区中央1丁目)の建物情報
美奈見苑ビル 賃貸物件基本情報
このページの情報は広告情報ではありません。過去から現在までCHINTAIネットに掲載のあった物件情報を元に作成した参考ページです。
| 交通 |
京浜東北線・根岸線/大森駅
徒歩15分
京急本線・久里浜線/平和島駅 徒歩20分 都営浅草線/西馬込駅 徒歩21分 |
|---|---|
| 駐車場 | 駐車場なし |
| 環境 |
--
※部屋・階数により設備が異なる場合がございます。 |
| 建物設備 |
オートロック
/
エレベーター
/
集合郵便受け
/
都市ガス
/
電気
/
公営上水道
/
下水道
/
駐輪場
※部屋・階数により設備が異なる場合がございます。 |
美奈見苑ビル周辺の空室物件
大田区周辺が得意な不動産店舗
株式会社エイブル蒲田西口店
- オススメ
オススメポイント 城南地域でのお部屋探しは当店にお任せ下さい!!
- 交通
- 京浜東北線・根岸線/蒲田駅
- 所在地
- 東京都大田区西蒲田7-1-7蒲田コロムビアビル1F
- 駅から徒歩3分以内
- 引越会社紹介
- 仲介手数料家賃の55%以下
- 多店舗展開
掲載物件数:
175
件
- 得意駅
- 蒲田駅 大森駅 京急蒲田駅 池上駅 武蔵新田駅 他
- 得意エリア
- 大田区 品川区 目黒区 世田谷区 横浜市鶴見区 他
03-3730-0761
