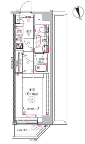
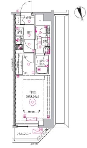
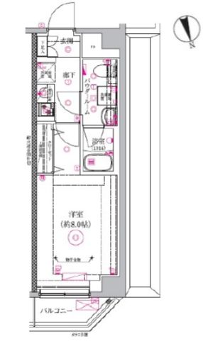
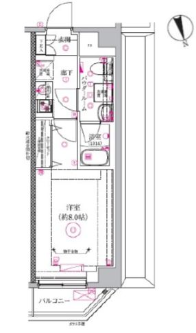
川治ビル(東京都大田区北馬込2丁目)の建物情報
川治ビル 賃貸物件基本情報
このページの情報は広告情報ではありません。過去から現在までCHINTAIネットに掲載のあった物件情報を元に作成した参考ページです。
| 交通 |
東急大井町線/中延駅
徒歩9分
東急大井町線/荏原町駅 徒歩4分 都営浅草線/馬込駅 徒歩7分 |
|---|---|
| 駐車場 | 駐車場なし |
| 環境 |
3駅利用可
/
2沿線利用可
※部屋・階数により設備が異なる場合がございます。 |
| 建物設備 |
都市ガス
/
公営上水道
/
下水道
※部屋・階数により設備が異なる場合がございます。 |
川治ビル周辺の空室物件
大田区周辺が得意な不動産店舗
株式会社エイブル池上店
- オススメ
オススメポイント 賃貸物件の事なら何でもご相談を♪
- 交通
- 東急池上線/池上駅
- 所在地
- 東京都大田区池上6-3-5鈴木ビル2F
- 仲介手数料家賃の55%以下
- 駅から徒歩3分以内
- 多店舗展開
- 開店10年以上
掲載物件数:
210
件
- 得意駅
- 池上駅 千鳥町駅 久が原駅 蓮沼駅 御嶽山駅 他
- 得意エリア
- 大田区 品川区 川崎市幸区
03-3755-5353
