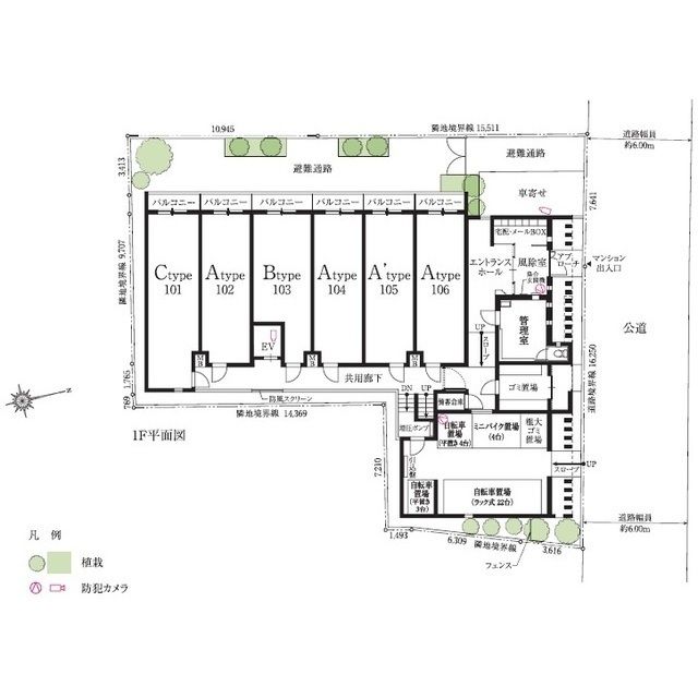
ペーネ三幸(東京都練馬区小竹町1丁目)の建物情報
ペーネ三幸 賃貸物件基本情報
このページの情報は広告情報ではありません。過去から現在までCHINTAIネットに掲載のあった物件情報を元に作成した参考ページです。
| 交通 |
山手線/池袋駅
徒歩44分
西武池袋線/江古田駅 徒歩9分 西武有楽町線/小竹向原駅 徒歩3分 |
|---|---|
| 駐車場 | 駐車場なし |
| 環境 |
--
※部屋・階数により設備が異なる場合がございます。 |
| 建物設備 |
都市ガス
/
灯油ボイラー
/
電気
/
公営上水道
/
下水道
※部屋・階数により設備が異なる場合がございます。 |
ペーネ三幸周辺の空室物件
練馬区周辺が得意な不動産店舗
株式会社エイブル石神井公園店
- オススメ
オススメポイント 親身・誠実・信頼できるお部屋探しのお手伝いをさせて頂きます!
- 交通
- 西武池袋線/石神井公園駅
- 所在地
- 東京都練馬区石神井町3-25-6石神井公園坂本ビル2F
- 女性スタッフ対応
- 入居ローン対応可
- 仲介手数料家賃の55%以下
- 駅から徒歩3分以内
掲載物件数:
387
件
- 得意駅
- 石神井公園駅 練馬高野台駅 大泉学園駅 保谷駅 ひばりヶ丘駅 他
- 得意エリア
- 練馬区 西東京市 杉並区 清瀬市 東久留米市 他
03-3997-8011
