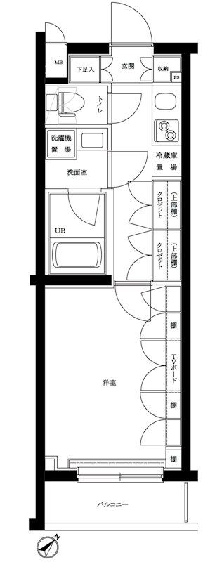
高見沢邸(東京都練馬区向山2丁目)の建物情報
高見沢邸 賃貸物件基本情報
このページの情報は広告情報ではありません。過去から現在までCHINTAIネットに掲載のあった物件情報を元に作成した参考ページです。
| 交通 |
西武池袋線/練馬駅
徒歩18分
西武池袋線/中村橋駅 徒歩10分 西武豊島線/豊島園駅 徒歩13分 都営大江戸線/豊島園駅 徒歩13分 |
|---|---|
| 駐車場 | 駐車場なし |
| 環境 |
--
※部屋・階数により設備が異なる場合がございます。 |
| 建物設備 |
都市ガス
/
電気
/
公営上水道
/
下水道
※部屋・階数により設備が異なる場合がございます。 |
高見沢邸周辺の空室物件
練馬区周辺が得意な不動産店舗
株式会社エイブル石神井公園店
- オススメ
オススメポイント 親身・誠実・信頼できるお部屋探しのお手伝いをさせて頂きます!
- 交通
- 西武池袋線/石神井公園駅
- 所在地
- 東京都練馬区石神井町3-25-6石神井公園坂本ビル2F
- 女性スタッフ対応
- 入居ローン対応可
- 仲介手数料家賃の55%以下
- 駅から徒歩3分以内
掲載物件数:
409
件
- 得意駅
- 石神井公園駅 練馬高野台駅 大泉学園駅 保谷駅 ひばりヶ丘駅 他
- 得意エリア
- 練馬区 西東京市 杉並区 清瀬市 東久留米市 他
03-3997-8011
