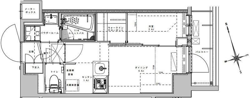
ヴィレ梅屋敷(東京都大田区大森西6丁目)の建物情報
ヴィレ梅屋敷 賃貸物件基本情報
このページの情報は広告情報ではありません。過去から現在までCHINTAIネットに掲載のあった物件情報を元に作成した参考ページです。
| 交通 |
京浜東北線・根岸線/蒲田駅
徒歩19分
京急本線・久里浜線/大森町駅 徒歩11分 京急本線・久里浜線/梅屋敷駅 徒歩6分 |
|---|---|
| 駐車場 | 駐車場なし |
| 環境 |
--
※部屋・階数により設備が異なる場合がございます。 |
| 建物設備 |
都市ガス
/
灯油ボイラー
/
電気
/
公営上水道
/
下水道
※部屋・階数により設備が異なる場合がございます。 |
ヴィレ梅屋敷周辺の空室物件
大田区周辺が得意な不動産店舗
株式会社エイブル糀谷店
- オススメ
オススメポイント 羽田空港周辺でご勤務の方はエイブル糀谷店へお任せ下さい!
- 交通
- 京急空港線/糀谷駅
- 所在地
- 東京都大田区西糀谷4-27-9ウィスタリアコート1F
- 仲介手数料家賃の55%以下
- 女性スタッフ対応
- 駅から徒歩3分以内
- 多店舗展開
掲載物件数:
183
件
- 得意駅
- 糀谷駅 京急蒲田駅 大鳥居駅 穴守稲荷駅 梅屋敷駅 他
- 得意エリア
- 大田区 川崎市幸区 品川区 目黒区 世田谷区 他
03-5705-8282
