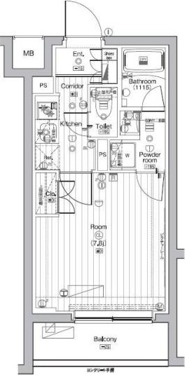
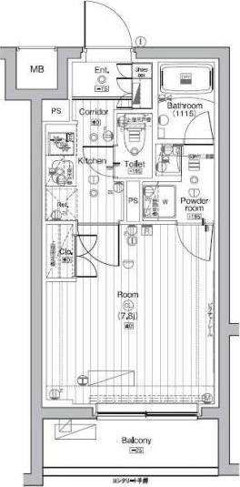
セイシェル(東京都大田区北千束2丁目)の建物情報
セイシェル 賃貸物件基本情報
このページの情報は広告情報ではありません。過去から現在までCHINTAIネットに掲載のあった物件情報を元に作成した参考ページです。
| 交通 |
東急大井町線/自由が丘駅
徒歩33分
東急目黒線/洗足駅 徒歩9分 東急大井町線/大岡山駅 徒歩11分 東急目黒線/大岡山駅 徒歩12分 東急池上線/長原駅 徒歩11分 東急池上線/洗足池駅 徒歩13分 東急大井町線/旗の台駅 徒歩13分 東急大井町線/北千束駅 徒歩2分 |
|---|---|
| 駐車場 | 駐車場なし |
| 環境 |
2駅利用可
/
2沿線利用可
※部屋・階数により設備が異なる場合がございます。 |
| 建物設備 |
防犯カメラ
/
敷地内ごみ置き場
/
都市ガス
/
公営上水道
※部屋・階数により設備が異なる場合がございます。 |
セイシェル周辺の空室物件
大田区周辺が得意な不動産店舗
株式会社エイブル大岡山店
- オススメ
オススメポイント 地域密着型!大岡山エリア・東急各沿線の賃貸物件情報満載!
- 交通
- 東急目黒線/大岡山駅
- 所在地
- 東京都大田区北千束1-40-4中島ビル1F
- 仲介手数料家賃の55%以下
- 引越会社紹介
- 駅から徒歩3分以内
- 多店舗展開
掲載物件数:
494
件
- 得意駅
- 大岡山駅 旗の台駅 洗足駅 自由が丘駅 石川台駅 他
- 得意エリア
- 大田区 目黒区 世田谷区 品川区
03-3724-8971
